 
        
     立即预约
        立即预约
     
            免费定制整装家居
一站置家 全程无忧 一省到底 
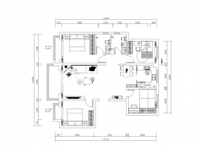
        当前位置: 首页 > 装修案例效果图 > 现代简约,四居,121㎡ - 150㎡,户型图
 
            设计说明:
                        
 现代简约风格是一种简单、干净、明亮、宁静的室内设计风格,追求的是少即是多的概念,在处理空间方面强调室内空间宽敞、室内通透,最大限度引入自然光。该案例以暖色为基调,为业主创造出舒适、自然、和谐的居住氛围。                    
 
             
            设计说明:
                        
 设计师整体设计理念:注重简约而不简单、随性而不随意简单随意的设计背后,透漏出高贵质感让人对这些细节,不得不产生视觉与心灵上的双重冲击。                    
 
             
            设计说明:
                        
 设计理念: 本案采用现代风格,客餐厅一体化大横厅设计,整个客厅区域非常宽敞大气,整体采用简约线条,时尚大方。                    
 
             
            设计说明:
                        
 设计师整体设计理念:本设计方案整体以现代极简为主,简约舒适:我们的设计理念是追求简约、舒适和功能性的完美结合。希望每个角落都能让你感受到家的温暖。通过自然光、和天然材质的运用,营造一个健康环保的居住环境,注重细节,从每一个小细节入手,提升你的生活品质和幸福感。                    
 
             
            设计说明:
                        
 设计师整体设计理念:客户比较注重收纳,把空间给客户合理规划,整体风格以黑白灰为主,舒适用简单。                    
 
             
            设计说明:
                        
 设计理念:本案例属于改善型学区房设计,客户有5岁的双胞胎女孩儿,主要为了孩子上学,整体风格现代温馨为主,整体也需要打造学习氛围,平面格局每个卧室都需要书桌,保证独立空间都能学习,客厅整体互动性比较强                    
 
             
            设计说明:
                        
 设计理念:现代简约风格是一种简单、干净、明亮、宁静的室内设计风格,追求的是少即是多的概念,在处理空间方面强调室内空间宽敞、室内通透,最大限度引入自然光。该案例以暖色为基调,为业主创造出舒适、自然、和谐的居住氛围。                    
 
             
            设计说明:
                        
 设计理念:客户是单身小伙,,本房型为四室一厨一卫的户型,根据客户的实际居住情况,简洁且充满艺术感的居住空间。设计过程中,深入了解了居住者的生活习惯、审美需求以及空间功能要求,确保设计方案既满足实用性,又体现个性化。客厅说明:客户日常活动空间主要在客厅,保留原始大阳台,晾衣区域设置在里侧,整体增加客厅的舒适性,整洁性和空间性                    
