立即预约
免费定制整装家居
一站置家 全程无忧 一省到底
当前位置: 首页 > 装修案例效果图 > 现代简约,四居,户型图
设计说明:
现代简约风格是一种简单、干净、明亮、宁静的室内设计风格,追求的是少即是多的概念,在处理空间方面强调室内空间宽敞、室内通透,最大限度引入自然光。该案例以暖色为基调,为业主创造出舒适、自然、和谐的居住氛围。
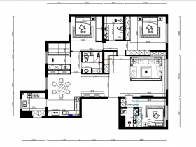
设计说明:
本案建筑面积366平米,根据业主需求设计了现代简约风格,整体以黑白灰为主,白色占60%为主体色,灰色占30%,黑色占10%为点缀色。当代装修最流行的风格,给人高端大气。
设计说明:
意式极简风整体比较简洁,但决不随意,用于装饰的墙面设计和家居线条优美,在简洁的外表下,给人一种低调奢华有内涵的感觉。意式极简,从设计风格上来说同时拥有着浪漫的古典风和极简的现代风两张迷人的面孔,艺术与生活功能紧密结合,让家独具品味又温馨舒适。
设计说明:
设计师整体设计理念:注重简约而不简单、随性而不随意简单随意的设计背后,透漏出高贵质感让人对这些细节,不得不产生视觉与心灵上的双重冲击。
设计说明:
设计理念: 本案采用现代风格,客餐厅一体化大横厅设计,整个客厅区域非常宽敞大气,整体采用简约线条,时尚大方。
设计说明:
设计师整体设计理念:本设计方案整体以现代极简为主,简约舒适:我们的设计理念是追求简约、舒适和功能性的完美结合。希望每个角落都能让你感受到家的温暖。通过自然光、和天然材质的运用,营造一个健康环保的居住环境,注重细节,从每一个小细节入手,提升你的生活品质和幸福感。
设计说明:
设计师整体设计理念:客户比较注重收纳,把空间给客户合理规划,整体风格以黑白灰为主,舒适用简单。
设计说明:
一个人的家,决定着他的层次,藏着一生的模样。
家不仅仅是住所,更是一个人品味和生活状态的体现。
当极简风撞上蓝灰色和大理石,不仅让设计充满时尚感、高级感,功能上也实用又方便。267平的极简风,在干净大气高颜值空间,找到心目中“家”的归属感。