 
        
     立即预约
        立即预约
     
            免费定制整装家居
一站置家 全程无忧 一省到底 
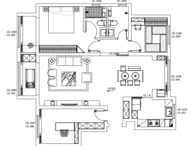
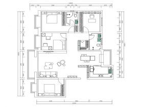
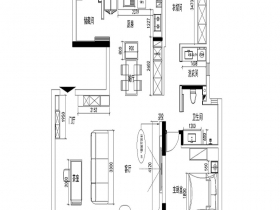
        当前位置: 首页 > 装修案例效果图 > 现代简约,二居,121㎡ - 150㎡,户型图
 
            设计说明:
                        
 本设计采用软装配合,简单的线条,简单的组合,再加入简单的元素;发挥结构构成本身的形式美,造型简洁,运用合理的构成工艺,构成一个舒适简单的空间。                    
 
             
            设计说明:
                        
 客户是老两口退休后的房子,准备重新翻新,本案对厨房和卫生间的布局方面进行了重新的调整,增加了老人淋浴的空间以及厨房收纳以及台面的面积,搭配暖色调的颜色搭配,布局大方,简单温馨                    
 
             
            设计说明:
                        
 设计师整体设计理念: 因生活而设计,因设计而完美。                    
 
             
            设计说明:
                        
 本案设计整体以温馨的木配合洁白的墙面,为业主打造一个简约、功能性舒适性强的家。                    
 
             
            设计说明:
                        
 设计师整体设计理念: 因生活而设计,因设计而完美。                    
 
             
            设计说明:
                        
 设计师整体设计理念:本案为现代简约风格,整体设计主要以黑白灰为主,颜色比较素雅,线条比较流畅,打造出现代人居住的舒适空间。                    
 
             
            设计说明:
                        
 设计师整体设计理念:温馨的老年生活本案的居住者是一对老年夫妻,于是我们将整体的设计理念定调于为年长的居住者打造一个温馨舒适的家居环境。在考虑业主家庭情况及要求的基础上,设计将以棕色系为主色调,营造温馨舒适的氛围。同时,将注重储物空间的设计,以满足业主对丰富储物空间的需求。                    
 
             
            设计说明:
                        
 设计理念:本案建筑面积125平米,根据业主需求设计了现代简约风格,简单大气,不俗套,用简单明快的线条和装饰,营造不简单的效果。                    
