 
        
     立即预约
        立即预约
     
            免费定制整装家居
一站置家 全程无忧 一省到底 
        设计理念:现代简约风格的两居室房子里,也有不一样的视觉空间。运用两种比较柔和的浓度比较浅色系的色彩进行了碰撞,在一个空间里,不用角度,都有不一样的生活空间!家同样也是一个多样化的空间!
案例详情
 
                                                                             
                                                                             
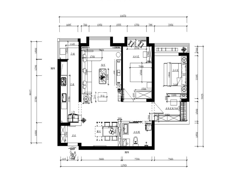
                                                                            利用爵士白大理石的作为电视背景墙的主墙面,两侧为了增加温馨感,利用硅藻泥作为衬底,使空间并没有那么生冷。沙发背景墙运用了今年延禧攻略流行的奶茶绿,作为一个很强烈的对比,色彩的纯度和浓度进行了调节,较为温和,空间并没有显得很暗,反而更加有延伸感!
 
                                                                             
                                                                            餐厅空间是一个很细长的空间,为了让空间更加丰富,变得匀称,增加了一组酒水柜,它的宽度把空间缩短一些,让整个餐厅变得四四方方。酒水柜的空间也并不是那么沉闷,有开放格的空间。利用筒灯的照明,显得更为立体!
 
                                                                            主卧室的空间原始很大,为了增加一些储物空间,特此把墙体全部拆除,进行重新分割,做个一组更衣室,还有一个书房空间,它是通透的,两个空间,互相衬托,显得空间更大!有明亮!
 
                                                                             
                                                                            厨房空间延伸到阳台,整体作为一个开放式的厨房空间,大大增加了储物功能,又能使家用电器的合理分布,使洗、切、炒更为顺畅,中西厨分开,业主非常喜欢!男主人和女主人可以一起做晚餐,很惬意!
 
                                                                             
                                                                精品设计案例
 
            设计说明:
                        
 三室两厅一厨两卫,高层整体采用美式风格,色调以深色为主,体现美式的居家感和温馨感。                    
 
             
            设计说明:
                        
 本案业主为年轻时尚小两口,所以我们考虑到未来想要给未来宝宝一个温馨舒适的一个房间,所以本案整体采用现代风格的手法,运用颜色,来打造整体空间的设计感及时尚感                    
 
             
            设计说明:
                        
 本案以北欧风格为主题的设计,北欧风格能以现代、简洁、自然的特点俘获人心,所营造出来的生活氛围会让人倍感舒适与自在。                    
 
             
            设计说明:
                        
 客户是一名成功人士,对于家的执念就是简单干净,客户衣服比较多,所以把每个空间都做了大衣柜,并且融入到设计里                    
