 
        
     立即预约
        立即预约
     
            免费定制整装家居
一站置家 全程无忧 一省到底 
        设计理念:设计师在设计客厅的时候充分考虑了客户入住几年后可能会出现的审美疲劳,并且采用现今主流的设计理念”轻装修,重装饰“,去繁从简。在色彩上,设计师采用了少量的比较跳的颜色,活跃空间气氛。
案例详情
 
                                                                             
                                                                             
                                                                            客厅作为待客区域,一般要求简洁明快。整体而言,现代风的客厅宽阔明朗却不单调。客厅选择的是布艺的沙发,在美观的同时,保证了良好的舒适和透气性。沙发背景选用浅色挂画作为点缀,另一边的电视背景墙用简单的浅灰色自然地融入周围墙体,不会喧宾夺主,并使客厅整体感更强。
 
                                                                            餐厅设计的亮点在于与厨房完美融合,美观实用高效利用空间。
 
                                                                             
                                                                             
                                                                             
                                                                             
                                                                             
                                                                            这套案例借鉴了现代简约的黑白灰设计的元素,提升了居室的空间格调,一些深色的家具设计,让我们品味到一种实实在在的温馨感,以简约的表现形式来满足业主对于简约却不简单的居室环境的要求。
 
                                                                             
                                                                            因为卫生间是一个追求舒适的地方,只有整洁统一的色调才能给人以最舒适的感觉,卫浴用具统一白色,墙面地面选用统一的灰色砖,大气整洁,石材纹理给人放松自然之感。
 
                                                                             
                                                                精品设计案例
 
            设计说明:
                        
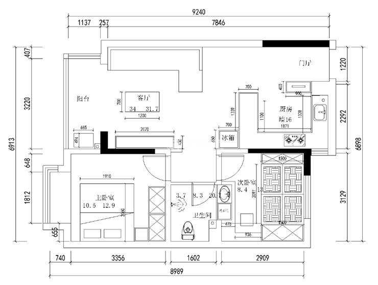
 三室两厅一厨两卫,高层整体采用美式风格,色调以深色为主,体现美式的居家感和温馨感。                    
 
             
            设计说明:
                        
 本案业主为年轻时尚小两口,所以我们考虑到未来想要给未来宝宝一个温馨舒适的一个房间,所以本案整体采用现代风格的手法,运用颜色,来打造整体空间的设计感及时尚感                    
 
             
            设计说明:
                        
 本案以北欧风格为主题的设计,北欧风格能以现代、简洁、自然的特点俘获人心,所营造出来的生活氛围会让人倍感舒适与自在。                    
 
             
            设计说明:
                        
 客户是一名成功人士,对于家的执念就是简单干净,客户衣服比较多,所以把每个空间都做了大衣柜,并且融入到设计里                    
