 
        
     立即预约
        立即预约
     
            免费定制整装家居
一站置家 全程无忧 一省到底 
        设计理念:客户是年轻夫妻,追求舒适度,喜欢自由自在的生活方式,所以本案定义为简美风格。
案例详情
 
                                                                             
                                                                             
                                                                             
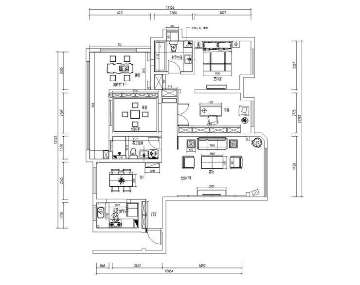
                                                                            客厅墙面以暖色调为主,搭配暖色的地砖给人以温馨的感受,深色的茶几、电视柜,以及蓝色的高柜书架和暖色的沙发融入其中,使空间层次分明,更显活力。白色文化石电视背景墙为客厅空间增添明度,与棚面形成一体。电视柜上的饰品,茶几上的花枝,以及沙发背景墙上的挂画每一个装饰品在整体空间中都起到了锦上添花的作用。
 
                                                                             
                                                                            餐厅墙面以暖色为主,圆形餐桌象征着团圆的美好意义。浅蓝色的窗帘与灰蓝色的柜子为餐厅营造一种宁静安逸的氛围。灰蓝色的酒柜和白色的餐边柜在空间中不显单调,也与客厅高柜颜色相协调,两者交相呼应。
 
                                                                            主卧室墙面以浅灰色乳胶漆为主,床头背景墙部用小挂画进行装饰,棚面做直线边棚,筒灯做气氛灯光,让卧室空间增添温馨感。深色的床边床头柜以及斗柜和深色的拼花地板,给人带来一种很舒适的感觉,与浅灰色的墙面相互呼应。
 
                                                                             
                                                                            卫生间处充分利用空间做洗手台,通长洗手台台面以及大面积梳妆镜给人一种大气开阔,明亮的感觉。地面以暖色地砖铺贴,墙面大面积为白色,再搭配上浅灰色木纹柜体,整个空间尽显干净整洁,并且通过合理利用空间浴缸与淋浴区都在同一侧,保证了整体美感的同时,还增加了舒适度。
 
                                                                            厨房空间规整,利用空间优势放至冰箱,厨房电器柜嵌入整体的橱柜中,两侧做一字型台面。地砖以及墙砖都为冷色调,与白色的橱柜相结合,墙砖运用大理石纹,使墙面看起来简洁美观而不是格调。
 
                                                                             
                                                                精品设计案例
 
            设计说明:
                        
 三室两厅一厨两卫,高层整体采用美式风格,色调以深色为主,体现美式的居家感和温馨感。                    
 
             
            设计说明:
                        
 本案业主为年轻时尚小两口,所以我们考虑到未来想要给未来宝宝一个温馨舒适的一个房间,所以本案整体采用现代风格的手法,运用颜色,来打造整体空间的设计感及时尚感                    
 
             
            设计说明:
                        
 本案以北欧风格为主题的设计,北欧风格能以现代、简洁、自然的特点俘获人心,所营造出来的生活氛围会让人倍感舒适与自在。                    
 
             
            设计说明:
                        
 客户是一名成功人士,对于家的执念就是简单干净,客户衣服比较多,所以把每个空间都做了大衣柜,并且融入到设计里                    
