 
        
     立即预约
        立即预约
     
            免费定制整装家居
一站置家 全程无忧 一省到底 
        设计理念:用艺术化是手法,以人为本的理念,设计营造出人性化,合理的室内外空间的舒适环境。
案例详情
 
                                                                             
                                                                             
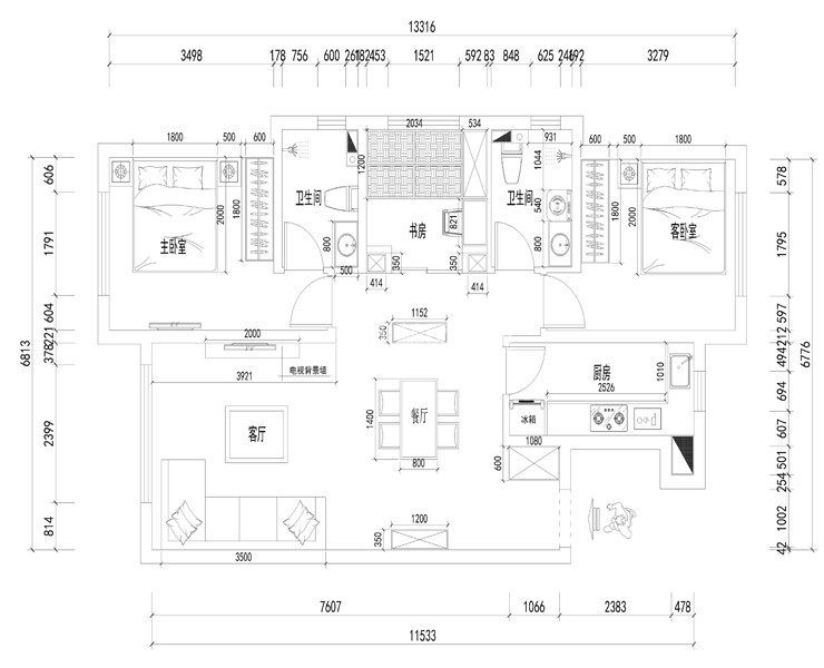
                                                                            客厅作为待客区域,业主要求设计上要凸显出现代的特点,客厅地面选用地面采用地板纹理样式的地砖,电视背景墙造型简洁现代用色简单,有利感之感,没有浮夸表面装饰处理,白色电视柜进行点缀。空间具有层次感,沙发背景墙采用挂画的形式,与电视背景墙相呼应,主次分明,客厅区域看起来非常大气有内涵
 
                                                                             
                                                                             
                                                                            餐厅是人们就餐的场所,浅色木质餐桌搭配四种不同颜色的餐椅,造型及色彩相协调,并与整个餐厅格调一致。隔板式餐边柜显得餐厅很大气,以及不同颜色的吊灯,颜色搭配一致,实现了现代风格设计的特点,为业主营造一个舒适怡人的就餐环境。
 
                                                                            卧室是整套房子中最私人也是最体现出温馨休闲感的空间,一般在设计时要体现出静谧舒适的感觉,并且与其他空间明显的区别。主卧室面积较大,一张双人床两个床头柜以及一个衣柜,满足业主的需求,窗帘和床以及床头背景墙颜色呼应,使得卧室变的更加宽敞温馨。
 
                                                                            卫生间的环境影响着家庭卫生,所以卫生间的设计要讲究,而且经常和水打交道,要做到防水防滑, 墙砖地砖均选用白灰色瓷砖,干净宽敞明亮,白色洗手盆吊柜,与整个卫生间相呼应,一字型浴屏将淋浴分割出来,易清理。
 
                                                                            最大限度的利用厨房空间,巧妙的使用L型橱柜,使得小厨房也变的宽敞,操作台选用白色大理石,吸水性弱,油渍也利于打理。下橱柜均采用酒红色橱柜,很具有观赏能力,给视觉上一种欣赏,也是味觉上的喜爱,上柜采用透明玻璃,使厨房变的更加通透,与白色墙砖层次分明,更有立体感。
 
                                                                精品设计案例
 
            设计说明:
                        
 三室两厅一厨两卫,高层整体采用美式风格,色调以深色为主,体现美式的居家感和温馨感。                    
 
             
            设计说明:
                        
 本案业主为年轻时尚小两口,所以我们考虑到未来想要给未来宝宝一个温馨舒适的一个房间,所以本案整体采用现代风格的手法,运用颜色,来打造整体空间的设计感及时尚感                    
 
             
            设计说明:
                        
 本案以北欧风格为主题的设计,北欧风格能以现代、简洁、自然的特点俘获人心,所营造出来的生活氛围会让人倍感舒适与自在。                    
 
             
            设计说明:
                        
 客户是一名成功人士,对于家的执念就是简单干净,客户衣服比较多,所以把每个空间都做了大衣柜,并且融入到设计里                    
