立即预约 立即预约
免费定制整装家居

免费定制整装家居

一站置家 全程无忧 一省到底
hide.png

当前位置: 首页 > 装修案例效果图 > 月星国际城

月星国际城 84平 现代简约风格效果图

收藏
案例风格 现代简约 案例户型 二居 案例面积 84平米
楼盘名称 月星国际城 设计师 林凤装饰设计师 案例类型 婚房

设计理念:以合理的空间布局来体现整体空间设计思维,让空间最大利用化。

客厅
第1张
第2张
第3张
第4张
餐厅
第1张
卧室
第1张
卫生间
第1张
厨房
第1张
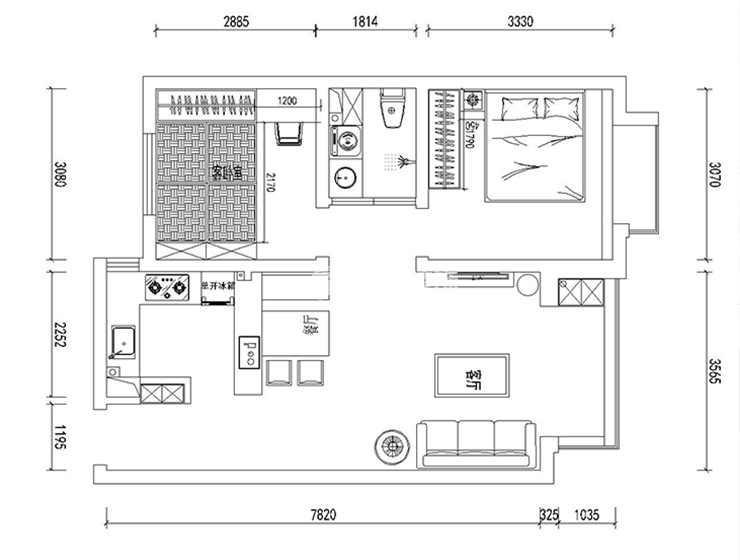
户型图
第1张
  • 案例详情

月星国际城-84平-现代风格-客厅1.jpg 月星国际城-84平-现代风格-客厅.jpg 月星国际城-84平-现代风格-客厅2.jpg 月星国际城-84平-现代风格-客厅3.jpg

客厅棚墙面主要运用乳胶漆调色来成为整个区域的亮点,吊顶的直线边棚是整个空间更加宽敞立体,挂画的颜色里包含了所有的背景色,加大了空间的视觉效果,整体的客厅大气又舒适。通过室内家具简单富有内容的色彩打造现代风格一种朴素、清新的原始之美的气氛,

月星国际城-84平-现代风格-餐厅.jpg

餐厅搭配白色桌面,黑胡桃椅子体现其设计效果。在满足空间实用性的前提下又满足了其美观性,体现餐厅与整个空间的统一性、和谐性。接近自然的原生态的美感,没有一点多余的装饰,一切材质都袒露出原有的肌理和色泽。

月星国际城-84平-现代风格-主卧.jpg

卧室使用铁艺床为主,让整个空间看起来更文艺,背景墙的彩色地图搭配绿色乳胶漆,让整个空间更活泼。

月星国际城-84平-现代风格-卫生间.jpg

卫生间地面使用爵士白的瓷砖,墙面使用浅灰白色砖来体现地面与墙面的区别以及增加空间的立体感,

月星国际城-84平-现代风格-厨房.jpg

厨房墙选用浅一点瓷砖、白色深色上下橱柜的结合,拓展其空间视觉效果。显示其明亮大气又不失风格其简单自然地的韵味。

月星国际城-84平-现代风格-平面图.jpg

案例设计师

林凤装饰设计师

设计师:林凤装饰设计师

从业时间:11年

设计理念:设计来源于生活。

预约设计师

算算你家装修多少钱

报名即享丰厚赠品,享半价装修

免费报价
咨询热线:400-656-9909
20190221103704574636.jpg

精品设计案例

20180612134930523248.jpg 服务号二维码.jpg