立即预约 立即预约
免费定制整装家居

免费定制整装家居

一站置家 全程无忧 一省到底
hide.png

当前位置: 首页 > 装修案例效果图 > 中粮隆玺一号

中粮隆玺一号 182平 新中式风格效果图

收藏
案例风格 新中式 案例户型 三居 案例面积 182平米
楼盘名称 中粮隆玺一号 设计师 林凤装饰设计师 案例类型 改善性住宅

设计理念:装饰诠释生活品质!

客厅
第1张
餐厅
第1张
卧室
第1张
第2张
卫生间
第1张
厨房
第1张
门厅
第1张
过廊
第1张
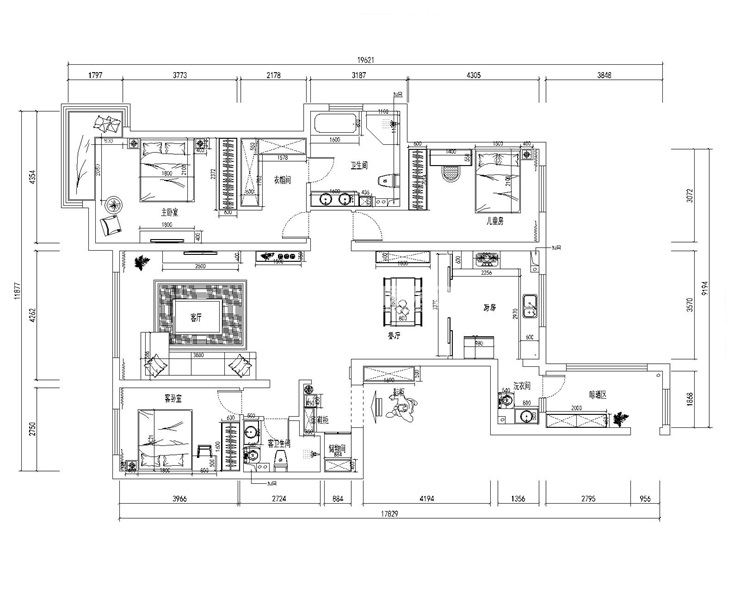
户型图
第1张
  • 案例详情

中粮隆玺-182平-新中式风格-客厅.jpg

客厅空间比较合理,地面上客厅的区域部分做了波打线,沙发部分也并没有做中式的木质沙发,而是做个皮艺的软体沙发更适合现代人对舒适度的要求

中粮隆玺-182平-新中式风格-餐厅.jpg

餐厅空间比较常规,在客厅和餐桌中间是过廊,在此处地面上也做了斜拼形式地砖,把区域感在地面空间上也表现出来。

中粮隆玺-182平-新中式风格-次卧室.JPG 中粮隆玺-182平-新中式风格-主卧.jpg

卧室空间本案采用了不一样的设计方式,让两个卧室拥有不同的风格体验,这一点在很多实例中可以等到应用,毕竟相似的设计风格在长时间的生活中总会让人感到疲乏。

中粮隆玺-182平-新中式风格-卫生间.jpg

卫生间在空间功能中占据了比较重要的位置,因此适合生活使用方便就显得尤为重要,米色的墙砖能让空间更舒适。

中粮隆玺-182平-新中式风格-厨房.jpg

厨房空间比较适中,在开启方式上选择了对开式推拉设计,这样的方式能让动线更加的开阔。

中粮隆玺-182平-新中式风格-门厅.jpg 中粮隆玺-182平-新中式风格-过廊.jpg 中粮隆玺-182平-新中式风格-平面.jpg

案例设计师

林凤装饰设计师

设计师:林凤装饰设计师

从业时间:14年

设计理念:设计生活空间 提升品质生活

预约设计师

算算你家装修多少钱

报名即享丰厚赠品,享半价装修

免费报价
咨询热线:400-656-9909
20190221103704574636.jpg

精品设计案例

20180612134930523248.jpg 服务号二维码.jpg