 
        
     立即预约
        立即预约
     
            免费定制整装家居
一站置家 全程无忧 一省到底 
        设计理念:本案为现代设计风格,简单,干净。具有品味性、深度性,让家中呈现一种舒适、沉稳之美。空间中的金属元素能够提升整个空间的档次。中性和局部深度的色调搭配。让整个空间更加立体,让家居生活更舒适。 局部点缀艳丽的色调,让空间更加丰富活跃,局部金属质感的设计散发出高调的品味。
案例详情
 
                                                                             
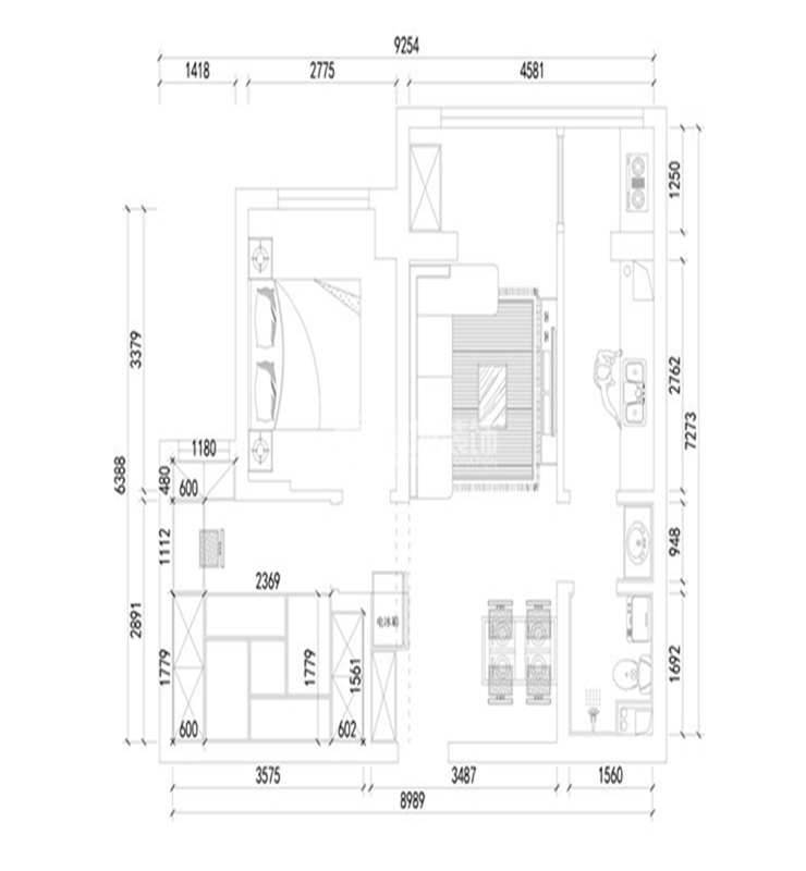
                                                                            客厅的装修风格,客厅作为待客区域,一般要求丰富多彩。此客厅进行了格局改造,把原有的阳台打通,使得空间更大。使用浅灰色的地砖,布艺的沙发, 结合深木色的电视背景墙更显得有立体感、空间感。同时背景墙左右的黑钢包裹的门口更能体现现代风格的特点。
 
                                                                            餐厅强调自由自在,放松共进早晚餐的空间,简洁明了。无需太多装饰,简单实用。
 
                                                                            卧室是主人休息的空间,由于业主喜欢非常流行的灰色,部分墙体以灰色涂刷,床头背景墙以蓝色作为突出点,让整个空间的气氛都活跃起来。丰富一些。卧室粉刷部分色彩墙体可以消除视觉疲劳。
 
                                                                            此案的洗漱间在厨房和卫生间的中间部分,就是我们通常所说的干湿分离。这样的设计可以解决家里一个用坐便一个洗漱可以不同时的问题,大大解决了,上班族早上时间紧张的问题,此设计更为合理。黑色马赛克墙面和手盆搭配显得更为时尚。
 
                                                                            厨房在人们眼中一般是开敞的。但是如果是中国式烹饪方式还是封闭式厨房最为适合,户型最初厨房空间特别的小,通过设计改造后,把阳台的一部分规划到厨房空间,这样使整个厨房的操作空间富裕了很多,烹饪时更加宽敞。白色文理的瓷砖和原木色的橱柜结合,给人一种干净明亮的感觉。让厨房不在狭小。
 
                                                                             
                                                                             
                                                                精品设计案例
 
            设计说明:
                        
 三室两厅一厨两卫,高层整体采用美式风格,色调以深色为主,体现美式的居家感和温馨感。                    
 
             
            设计说明:
                        
 本案业主为年轻时尚小两口,所以我们考虑到未来想要给未来宝宝一个温馨舒适的一个房间,所以本案整体采用现代风格的手法,运用颜色,来打造整体空间的设计感及时尚感                    
 
             
            设计说明:
                        
 本案以北欧风格为主题的设计,北欧风格能以现代、简洁、自然的特点俘获人心,所营造出来的生活氛围会让人倍感舒适与自在。                    
 
             
            设计说明:
                        
 客户是一名成功人士,对于家的执念就是简单干净,客户衣服比较多,所以把每个空间都做了大衣柜,并且融入到设计里                    
