 
        
     立即预约
        立即预约
     
            免费定制整装家居
一站置家 全程无忧 一省到底 
        设计理念:细节决定品质,品质决定生活!
案例详情
 
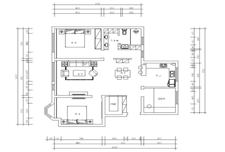
                                                                            客厅我们采用灰色系的瓷砖地面,电视背景墙理石上墙,使整个空间富有层次感。
 
                                                                            由于没有餐厅位,但走廊过宽,可以隔出餐厅位,餐厅背景墙采用生态木,即可以分可做隔断又可装饰
 
                                                                             
                                                                             
                                                                            主卧室重点在于灯光,明居暗室,主卧室可采用局部的深紫色,即又神秘又高档。
 
                                                                             
                                                                            敞开式厨房,使空间变大,使功能区域完美划分,厨房墙砖采用地砖上墙,使空间更具有时代感。
 
                                                                精品设计案例
 
            设计说明:
                        
 三室两厅一厨两卫,高层整体采用美式风格,色调以深色为主,体现美式的居家感和温馨感。                    
 
             
            设计说明:
                        
 本案业主为年轻时尚小两口,所以我们考虑到未来想要给未来宝宝一个温馨舒适的一个房间,所以本案整体采用现代风格的手法,运用颜色,来打造整体空间的设计感及时尚感                    
 
             
            设计说明:
                        
 本案以北欧风格为主题的设计,北欧风格能以现代、简洁、自然的特点俘获人心,所营造出来的生活氛围会让人倍感舒适与自在。                    
 
             
            设计说明:
                        
 客户是一名成功人士,对于家的执念就是简单干净,客户衣服比较多,所以把每个空间都做了大衣柜,并且融入到设计里                    
