立即预约 立即预约
免费定制整装家居

免费定制整装家居

一站置家 全程无忧 一省到底
hide.png

当前位置: 首页 > 装修案例效果图 > 绿城全运村

绿城全运村 128平 港式风格效果图

收藏
案例风格 港式 案例户型 三居 案例面积 128平米
楼盘名称 绿城全运村 设计师 林凤装饰设计师 案例类型 婚房

设计理念:港式风格;顾名思义,自然简洁。自然的木质色调使居室充满休闲的氛围,是快节奏都市生活的休恬的港湾。

客厅
第1张
第2张
第3张
餐厅
第1张
第2张
卧室
第1张
卫生间
第1张
过廊
第1张
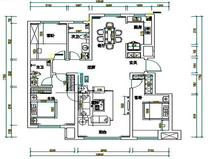
户型图
第1张
  • 案例详情

绿色全运村-128平-港式风格-客厅1.jpg 绿色全运村-128平-港式风格-客厅2.jpg 绿色全运村-128平-港式风格-客厅3.jpg

绿城全运村128平港式风格布置简洁,客厅的以黄色为主调,展现一个休闲的氛围。高级爵士白理石背景墙,配着金属质感的精美装饰隔断,打造低调奢华的整体造型,精致了细节。

绿色全运村-128平-港式风格-餐厅1.jpg 绿色全运村-128平-港式风格-餐厅2.jpg

绿城全运村128平港式风格用餐区的设计,无论是底蕴与格调还是舒适性与时尚感都表现得淋漓尽致 ,吊棚与墙面装饰多以金属色和线条感营造金碧辉煌的豪华感,简洁而不失时尚。

绿色全运村-128平-港式风格-卧室.jpg

绿城全运村128平港式风格背景墙的金属饰品营造金碧辉煌的豪华感,结合白色显得更加干净,整洁。

绿色全运村-128平-港式风格-卫生间.jpg

木质色调搭配灰色调,显得空间极其宽敞大气。

绿色全运村-128平-港式风格-过廊.jpg 绿色全运村-128平-港式风格-平面布局图.jpg

案例设计师

林凤装饰设计师

设计师:林凤装饰设计师

从业时间:8年

设计理念:因生活而设计,因设计而美好。

预约设计师

算算你家装修多少钱

报名即享丰厚赠品,享半价装修

免费报价
咨询热线:400-656-9909
20190221103704574636.jpg

精品设计案例

20180612134930523248.jpg 服务号二维码.jpg