立即预约 立即预约
免费定制整装家居

免费定制整装家居

一站置家 全程无忧 一省到底
hide.png

当前位置: 首页 > 装修案例效果图 > 金水花城

金水花城 120平 现代简约风格效果图

收藏
案例风格 现代简约 案例户型 二居 案例面积 120平米
楼盘名称 金水花城 设计师 林凤装饰全案设计师 案例类型 婚房

设计理念:本案是当今比较流行和时尚以及众多年轻人追逐的现代黑白灰风格,用素色的净版壁纸,主墙硬包抽缝造型,玫瑰金钢条点缀,以及柔软的布艺家居来营造温馨舒适的时尚居家生活。

客厅
第1张
第2张
卧室
第1张
第2张
卫生间
第1张
厨房
第1张
阳台
第1张
过廊
第1张
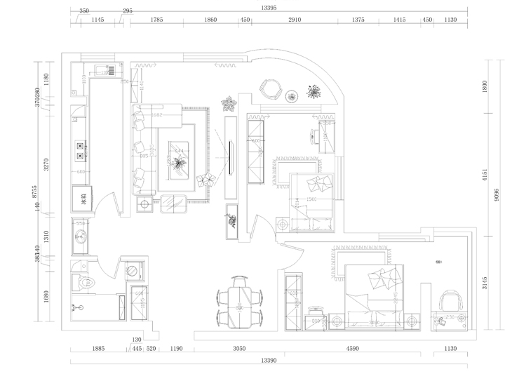
户型图
第1张
  • 案例详情

S4-肖旭-金水花城-120平米-现代风格-客厅1.jpg S4-肖旭-金水花城-120平米-现代风格-客厅3.jpg

本案的客厅沙发背景墙采用套色护墙板做区域主体整墙,中心面采用仿布纹的宽版无缝对接式的地板上墙,电视墙采用镶嵌电视式高挂壁炉,两侧依然做套色护墙板呼应沙发背景墙,来达到轻奢的元素统一。

S4-肖旭-金水花城-120平米-现代风格-次卧1.jpg S4-肖旭-金水花城-120平米-现代风格-卧室.jpg

卧室再本案中通过区域划分和格局的改造,使得卧室除了传统的功能外增加了衣帽间的区域,使得主卧室既多了实用性又形成了隔断,遮挡床与卫生间的直冲效果。

S4-肖旭-金水花城-120平米-现代风格-卫生间.jpg

本案中有两个卫生间了,由于人口多,所以公共卫生间调整为干湿分离式,使得洗漱与卫生间的功能互不影响,卫生间瓷砖采用素色方格瓷砖铺贴,淋浴区斜铺做造型墙的主区域,来达到纯粹功能性的卫生间。

S4-肖旭-金水花城-120平米-现代风格-厨房.jpg

厨房的瓷砖为了呼应整体效果,采用小仿古式瓷砖铺贴,颜色为中间色的咖啡色杂拼,由于是开放式厨房,为了避免厨房显得现在中庸,除了设计了一个实用性的早餐台外,橱柜的颜色用的比较时尚现代一点的灰蓝色,使得厨房与其他区域完美的融入一体。

S4-肖旭-金水花城-120平米-现代风格-阳台1.jpg S4-肖旭-金水花城-120平米-现代风格-过廊.jpg S4-肖旭-金水花城-120平米-现代风格-平面图.jpg

案例设计师

林凤装饰全案设计师

设计师:林凤装饰全案设计师

从业时间:13年

设计理念:设计:是一种追求完美的生活态度,是一种追求品味的生活

预约设计师

算算你家装修多少钱

报名即享丰厚赠品,享半价装修

免费报价
咨询热线:400-656-9909
20190221103704574636.jpg

精品设计案例

20180612134930523248.jpg 服务号二维码.jpg