 
        
     立即预约
        立即预约
     
            免费定制整装家居
一站置家 全程无忧 一省到底 
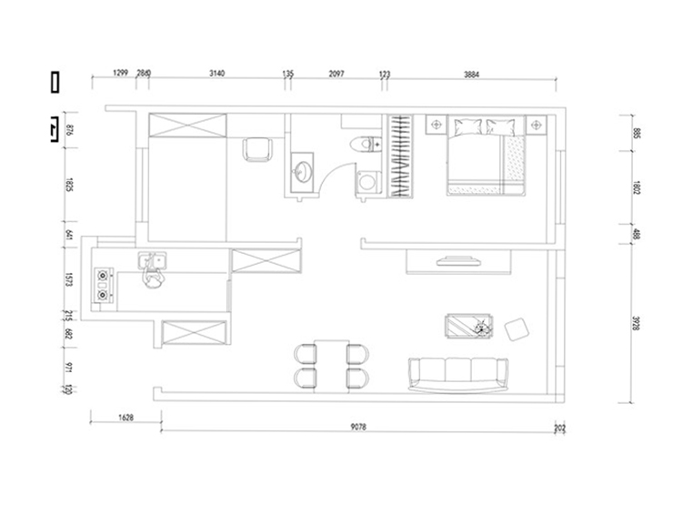
        设计理念:本案以现代风格为主题,现代设计追求的是空间实用性和灵活性。根据相互间的功能关系组合而成,功能空间相互渗透,空间的利用率也会得到极大的提升,冷暖色调相结合给予视觉上的冲击。
案例详情
 
                                                                             
                                                                             
                                                                            现代风格客厅布置宜简洁自然,色彩和谐,客厅大面积使用冷色,搭配暖色系的地板,显得空间不会特别冷清,大面积使用白色和灰色,采用少量米黄色作为搭配,冷暖结合,使得空间既灵活又不是现代感。
 
                                                                            餐厅与客厅相通,整体风格色调相互搭配,墙面搭配现代感极强的装饰画,使得空间不失单调,深灰色的餐桌搭配浅灰色的餐椅,与客厅的沙发,茶几相互映衬,使得空间更加立体更加饱满。
 
                                                                            卧室作为提供休息的地方,温馨的现代风格卧室,色彩简洁明快,空间整体以米黄色为主,搭配现代感的装饰画使得空间更加生动,温馨的氛围充斥在整个屋内,使奔波一天的主人,回家便能享受家的温暖
 
                                                                            卫生间整体以暖色调为主,与客厅大面积的冷色调相对,白色的洁具使得温馨的屋内更加现代化,视觉上既舒适又时尚。
 
                                                                            白色的橱柜搭配米黄色的操作台面使得空间明亮整洁,冷暖相见色彩明快的墙面使得整个空间活泼又不失沉稳。
 
                                                                精品设计案例
 
            设计说明:
                        
 三室两厅一厨两卫,高层整体采用美式风格,色调以深色为主,体现美式的居家感和温馨感。                    
 
             
            设计说明:
                        
 本案业主为年轻时尚小两口,所以我们考虑到未来想要给未来宝宝一个温馨舒适的一个房间,所以本案整体采用现代风格的手法,运用颜色,来打造整体空间的设计感及时尚感                    
 
             
            设计说明:
                        
 本案以北欧风格为主题的设计,北欧风格能以现代、简洁、自然的特点俘获人心,所营造出来的生活氛围会让人倍感舒适与自在。                    
 
             
            设计说明:
                        
 客户是一名成功人士,对于家的执念就是简单干净,客户衣服比较多,所以把每个空间都做了大衣柜,并且融入到设计里                    
