 
        
     立即预约
        立即预约
     
            免费定制整装家居
一站置家 全程无忧 一省到底 
        设计理念:女业主是高中老师,男业主是商人,他们日常里非常忙,与业主进行了深度沟通,最终把风格定位在现代简约,本案真正做到轻装修,重装饰,以后期的软装配饰达到业主要求的设计感,总体布局上满足业主的生活需求为宗旨进行设计。
案例详情
 
                                                                             
                                                                             
                                                                             
                                                                             
                                                                             
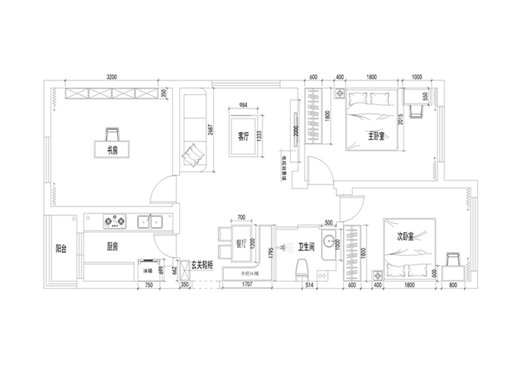
                                                                            客户喜欢家居自由随意、简洁明快、实用舒适,对比鲜明的色彩。本案客厅主要以白色的墙面配以简洁的石膏线,做到了轻装修,简洁大方,电视背景墙的缺点是较小,不适合做造型,所以本案设计了隔板,以书籍和摆件做装饰,沙发背景墙同样较短,也没设计硬装造型,选择照片墙的点缀,在照片色彩的搭配上选用对比色,给客厅空间增添了点缀色,使整个客厅看起来时尚感,温馨感兼具。
 
                                                                            餐厅在本案中是一个小亮点,入户门处的餐厅区域选用了L型的卡座设计,功能性上,卡座下面的柜子增添了储物功能,解决了玄关处储物空间不足的缺点,同时卡座的设计又很有围合感,让一家人用餐时更加温馨,餐厅区域的墙面以照片墙和黑板墙的设计做装饰,打造了一个实用性和时尚感兼具的餐厅。
 
                                                                            主卧室墙面采用浅色花团图案壁纸,使得整体空间更加时尚,家具则采用板式木纹纹理,让卧室轮廓感极强,层次有致
 
                                                                            卫生间的缺点是没有窗户,采光不好,所以墙地砖选择淡黄色仿理石纹理瓷砖,时尚 温馨,整体洁具也采用白色材系列,打造一个干净,简洁的卫浴空间。
 
                                                                            厨房主要以浅黄色小格子瓷砖配上实木橱柜,搭配灰白格的吊顶,不但在色调上给业主营造了一种干净 清新的感觉,营造一个舒适的烹饪环境。
 
                                                                精品设计案例
 
            设计说明:
                        
 三室两厅一厨两卫,高层整体采用美式风格,色调以深色为主,体现美式的居家感和温馨感。                    
 
             
            设计说明:
                        
 本案业主为年轻时尚小两口,所以我们考虑到未来想要给未来宝宝一个温馨舒适的一个房间,所以本案整体采用现代风格的手法,运用颜色,来打造整体空间的设计感及时尚感                    
 
             
            设计说明:
                        
 本案以北欧风格为主题的设计,北欧风格能以现代、简洁、自然的特点俘获人心,所营造出来的生活氛围会让人倍感舒适与自在。                    
 
             
            设计说明:
                        
 客户是一名成功人士,对于家的执念就是简单干净,客户衣服比较多,所以把每个空间都做了大衣柜,并且融入到设计里                    
