 
        
     立即预约
        立即预约
     
            免费定制整装家居
一站置家 全程无忧 一省到底 
        设计理念:本案是以新中式风格为主的设计方案,本案设计中即保留业主对传统文化的传承又不失现代生活方式的品质,让传统文化与时代同步。
案例详情
 
                                                                             
                                                                             
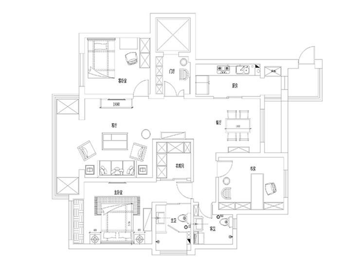
                                                                            在客厅空间吊棚的设计上,采用了直线条,精致又简单,在电视墙面采用了瓷砖的与木作结合的设计,通过材质的变化,让原本比较小的墙面从视觉上变大,沙发采用实木框架布艺沙发,即与整体空间协调又舒适,处处彰显新中式的元素。
 
                                                                             
                                                                            餐厅棚面空间比较小,所以没有采用吊棚设计,而是用简单的直线棚角线设计,即起到修饰作用,又让空间宽敞。
 
                                                                             
                                                                            厨房空间与餐厅空间只有一扇玻璃拉门相隔,所以橱柜颜色的选择上,同餐厅的木色一致。
 
                                                                            此空间为女主人空间,由于女主人平时喜欢看书,所以书房设计上采用整面书柜设计,即起到储藏功能,又使空间增加浓厚的书香气息。
 
                                                                             
                                                                精品设计案例
 
            设计说明:
                        
 三室两厅一厨两卫,高层整体采用美式风格,色调以深色为主,体现美式的居家感和温馨感。                    
 
             
            设计说明:
                        
 本案业主为年轻时尚小两口,所以我们考虑到未来想要给未来宝宝一个温馨舒适的一个房间,所以本案整体采用现代风格的手法,运用颜色,来打造整体空间的设计感及时尚感                    
 
             
            设计说明:
                        
 本案以北欧风格为主题的设计,北欧风格能以现代、简洁、自然的特点俘获人心,所营造出来的生活氛围会让人倍感舒适与自在。                    
 
             
            设计说明:
                        
 客户是一名成功人士,对于家的执念就是简单干净,客户衣服比较多,所以把每个空间都做了大衣柜,并且融入到设计里                    
