立即预约 立即预约
免费定制整装家居

免费定制整装家居

一站置家 全程无忧 一省到底
hide.png

当前位置: 首页 > 装修案例效果图 > 群升新天地

群升新天地 140平 美式风格效果图

收藏
案例风格 美式 案例户型 二居 案例面积 140平米
楼盘名称 群升新天地 设计师 林凤设计师 案例类型 婚房

设计理念:本案是现代简约风格,在简单明了的造型设计中融入更多、更细的材质与色彩元素,让简约中透出经典。

客厅
第1张
第2张
第3张
第4张
餐厅
第1张
第2张
卧室
第1张
卫生间
第1张
厨房
第1张
过廊
第1张
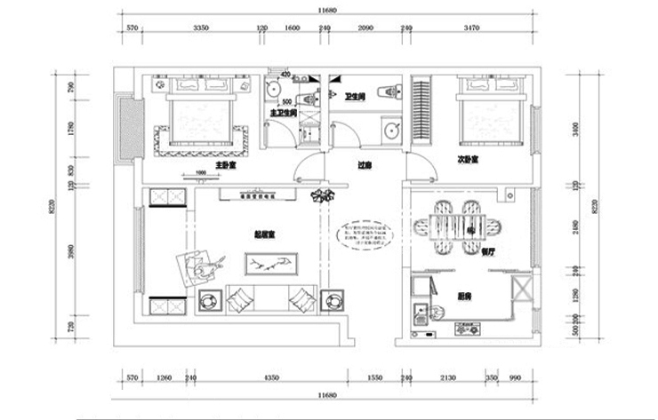
户型图
第1张
  • 案例详情

群升新天地-140平-简美风格-头图.jpg 群升新天地-140平-简美风格-客厅.jpg 群升新天地-140平-简美风格-电视背景.jpg 群升新天地-140平-简美风格-客厅 (2).jpg

美式的客厅有的不只是豪华大气,更多的是意境和随意。通过完美的理石电视墙线条,精益求精的细节处理,带给业主不尽的舒适触感,实际上和谐是风格的最高境界。

群升新天地-140平-简美风格-餐厅背景.jpg 群升新天地-140平-简美风格-餐厅.jpg

美式餐厅即西式餐厅风格,渲染,体会异国餐饮情调为目的。实木餐桌和白色的墙体石膏线搭配显示出来餐厅的感觉而不显得老气

群升新天地-140平-简美风格-卧室.jpg

美式卧室兼备豪华、优雅、和谐、舒适、浪漫的特点,受到了越来越多业主的喜爱

群升新天地-140平-简美风格-卫生间.jpg

卫生间墙地砖选择灰色系列的砖给人带来的是一种温馨,浴屏的独特设计分开了空间的干湿分离,体现出了客户的高大上。

群升新天地-140平-简美风格-厨房.jpg

厨房主要以仿古墙砖在搭配实木门板,颇显出自然风姿,深浅搭配颜色的运用,使整个空间更显大气。

群升新天地-140平-简美风格-过廊.jpg 群升新天地-140平-简美风格-平面图.jpg

案例设计师

林凤设计师

设计师:林凤设计师

从业时间:9年

设计理念:想客户之所想,急客户之所急,永远吧客户的利益放在自己的利益之上。

预约设计师

算算你家装修多少钱

报名即享丰厚赠品,享半价装修

免费报价
咨询热线:400-656-9909
20190221103704574636.jpg

精品设计案例

20180612134930523248.jpg 服务号二维码.jpg