立即预约 立即预约
免费定制整装家居

免费定制整装家居

一站置家 全程无忧 一省到底
hide.png

当前位置: 首页 > 装修案例效果图 > 广厦绿园

广厦绿园 130平 现代简约风格效果图

收藏
案例风格 现代简约 案例户型 四居 案例面积 130平米
楼盘名称 广厦绿园 设计师 李雪 案例类型 改善性住宅

设计理念:本案是以现代风格为主的设计,室内温馨,简单,没有太多的复杂,这种搭配令空间充满恒久的亲和力!让人比较容易接受的风格,是最值得选择。

客厅
第1张
第2张
第3张
第4张
餐厅
第1张
第2张
第3张
卫生间
第1张
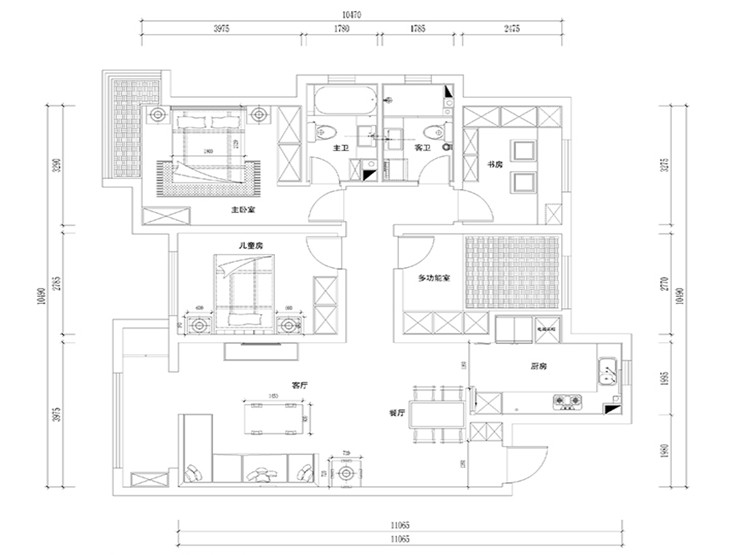
户型图
第1张
  • 案例详情

广厦绿园-130平-现代风格-客厅.jpg 广厦绿园-130平-现代风格-客厅2.jpg 广厦绿园-130平-现代风格-客厅3.jpg 广厦绿园-130平-现代风格-客厅4.jpg

客户喜欢简单又不失高档的客厅。通过灯光的效果进而打造温馨的客厅,灰色的沙发配上简约的抱枕从而打造简单又不奢华的环境。,

广厦绿园-130平-现代风格-餐厅.jpg 广厦绿园-130平-现代风格-餐厅2.jpg 广厦绿园-130平-现代风格-餐厅4.jpg

本案餐厅没有什么复杂的装饰,木色的背景给业主带来了一种温馨,让业主在就餐的过程中可以得以放松。

广厦绿园-130平-现代风格-卫生间.jpg 广厦绿园-130平-现代风格-户型图.jpg

案例设计师

李雪

设计师:李雪

从业时间:6年

设计理念:设计源于生活,而又升华于生活。

预约设计师

算算你家装修多少钱

报名即享丰厚赠品,享半价装修

免费报价
咨询热线:400-656-9909
20190221103704574636.jpg

精品设计案例

20180612134930523248.jpg 服务号二维码.jpg