立即预约 立即预约
免费定制整装家居

免费定制整装家居

一站置家 全程无忧 一省到底
hide.png

当前位置: 首页 > 装修案例效果图 > 华润奉天九里

华润奉天九里 95平 美式风格效果图

收藏
案例风格 美式 案例户型 三居 案例面积 95平米
楼盘名称 华润奉天九里 设计师 林凤设计师 案例类型 改善性住宅

设计理念:无论是舒适还是美观,都围绕着“人”的一切活动来开展。人体工程学的运用、室内空间与家具的灵活性以及人性化的细节设计等等,都体现了北欧风格的这一设计思路。

客厅
第1张
第2张
餐厅
第1张
卧室
第1张
第2张
书房
第1张
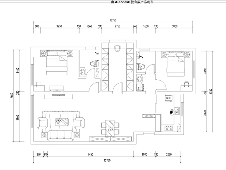
户型图
第1张
  • 案例详情

华润奉天九里-95平-简美风格-客厅.jpg 华润奉天九里-95平-简美风格-首图.jpg

总体采用明度较低的色调,但也不乏颜色的碰撞,低调但不简单。

华润奉天九里-95平-简美风格-餐厅.jpg

墙面采用红色,为本来颜色偏暗的房间增添了明快的感觉。

华润奉天九里-95平-简美风格-次卧.jpg 华润奉天九里-95平-简美风格-主卧.jpg

墙面采用红色,为本来颜色偏暗的房间增添了明快的感觉。

华润奉天九里-95平-简美风格-书房.jpg 华润奉天九里-95平-简美风格-平面图.jpg

案例设计师

林凤设计师

设计师:林凤设计师

从业时间:10年

设计理念:室内设计是是人与环境的联系,是人类艺术与物质文明的结合

预约设计师

算算你家装修多少钱

报名即享丰厚赠品,享半价装修

免费报价
咨询热线:400-656-9909
20190221103704574636.jpg

精品设计案例

20180612134930523248.jpg 服务号二维码.jpg