立即预约 立即预约
免费定制整装家居

免费定制整装家居

一站置家 全程无忧 一省到底
hide.png

当前位置: 首页 > 装修案例效果图 > 万达公园one|北欧风格

万达公园one|北欧风格 130平 其他风格效果图

收藏
案例风格 其他 案例户型 三居 案例面积 130平米
楼盘名称 万达公园one 设计师 郑婷婷 案例类型 改善性住宅

设计理念:北欧风格装修以简约为主,整体给人一种自然宁静,实用的艺术气息。

客厅
第1张
餐厅
第1张
第2张
卧室
第1张
第2张
第3张
卫生间
第1张
书房
第1张
门厅
第1张
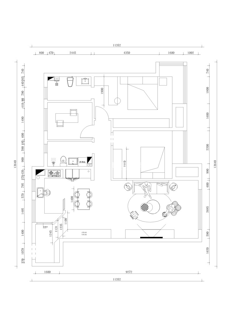
户型图
第1张
S5郑婷婷-万达公园ONE-130平-北欧风格-首图.jpg

客厅采光较好,家具用柔和色彩,素色家具来搭配。原本没有阳台空间,用吊棚做隐形衣架划分空间。

S5郑婷婷-万达公园ONE-130平-北欧风格-餐厅.jpg S5郑婷婷-万达公园ONE-130平-北欧风格-餐厅1.jpg

餐边柜增加了收纳功能。冰箱做内嵌 旁边高柜可以做零食柜。

S5郑婷婷-万达公园ONE-130平-北欧风格-次卧.jpg S5郑婷婷-万达公园ONE-130平-北欧风格-主卧.jpg S5郑婷婷-万达公园ONE-130平-北欧风格-主卧1.jpg

让储物空间更多,做了转角衣帽间和床尾柜的设计。

S5郑婷婷-万达公园ONE-130平-北欧风格-卫生间.jpg

卫生间用600*1200的柔光转,干净,整洁。

S5郑婷婷-万达公园ONE-130平-北欧风格-书房.jpg S5郑婷婷-万达公园ONE-130平-北欧风格-书房.jpg S5郑婷婷-万达公园ONE-130平-北欧风格-平面图.jpg

案例设计师

郑婷婷

设计师:郑婷婷

从业时间:9年

设计理念:用心与住宅对话,交织出住宅中的灵魂所属

预约设计师

算算你家装修多少钱

报名即享丰厚赠品,享半价装修

免费报价
咨询热线:400-656-9909
20190221103704574636.jpg

精品设计案例

20180612134930523248.jpg 服务号二维码.jpg