立即预约 立即预约
免费定制整装家居

免费定制整装家居

一站置家 全程无忧 一省到底
hide.png

当前位置: 首页 > 装修案例效果图 > 圣水苑|现代风格

圣水苑|现代风格 121平 现代简约风格效果图

收藏
案例风格 现代简约 案例户型 二居 案例面积 121平米
楼盘名称 圣水苑 设计师 全案整装 案例类型 改善性住宅

设计理念:客户是老两口退休后的房子,准备重新翻新,本案对厨房和卫生间的布局方面进行了重新的调整,增加了老人淋浴的空间以及厨房收纳以及台面的面积,搭配暖色调的颜色搭配,布局大方,简单温馨

客厅
第1张
第2张
餐厅
第1张
卧室
第1张
第2张
卫生间
第1张
第2张
厨房
第1张
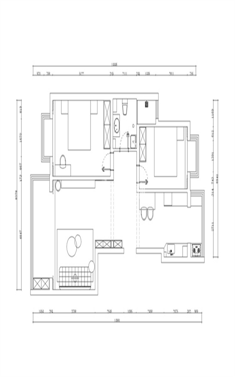
户型图
第1张
圣水苑-121平-现代风格-客厅-首页.jpg 圣水苑-121平-现代风格-客厅 (2).jpg

客厅方面对原来的二手房不合理的格局重新进行了规划,电视背景墙墙面过空,增加了格栅丰富参差

圣水苑-121平-现代风格-餐厅.jpg 圣水苑-121平-现代风格-次卧.jpg 圣水苑-121平-现代风格-主卧.jpg

增加衣物储存量,并且能规划出单独的换衣区,既是整体,又有分区,合理规化主卧空间

圣水苑-121平-现代风格-卫生间 (2).jpg 圣水苑-121平-现代风格-卫生间.jpg

暖色干净的瓷砖配色,增加独立淋浴区

圣水苑-121平-现代风格-厨房.jpg

厨房整体做开放,两侧延伸做橱柜,储存空间大,台面空间丰富

圣水苑121户型图.jpg

案例设计师

全案整装

设计师:全案整装

从业时间:9年

设计理念:成花成树非一日之功,精雕细作乃恒心所致

预约设计师

算算你家装修多少钱

报名即享丰厚赠品,享半价装修

免费报价
咨询热线:400-656-9909
20190221103704574636.jpg

精品设计案例

20180612134930523248.jpg 服务号二维码.jpg