立即预约 立即预约
免费定制整装家居

免费定制整装家居

一站置家 全程无忧 一省到底
hide.png

当前位置: 首页 > 装修案例效果图 > 中海汇德理|现代风格

中海汇德理|现代风格 127平 现代简约风格效果图

收藏
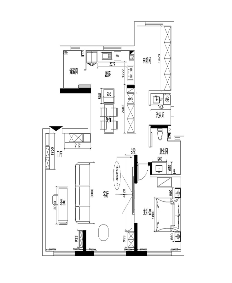
案例风格 现代简约 案例户型 二居 案例面积 127平米
楼盘名称 中海汇德理 设计师 姜宇 案例类型 改善性住宅

设计理念:本案设计整体以温馨的木配合洁白的墙面,为业主打造一个简约、功能性舒适性强的家。

客厅
第1张
第2张
第3张
第4张
餐厅
第1张
卧室
第1张
卫生间
第1张
厨房
第1张
过廊
第1张
户型图
第1张
中海汇德理-127平-现代风格-客厅02.jpg 中海汇德理-127平-现代风格-客厅01.jpg 中海汇德理-127平-现代风格-客厅.jpg 中海汇德理-127平-现代风格-首图.jpg

客厅整体色调以白灰为主,配合原木色地板以及局部木色墙板点缀,让客厅空间感觉即干净又温馨。

中海汇德理-127平-现代风格-餐厅.jpg

餐台的设计是采用岛台与成品餐桌的搭配,让空间更加灵活多变,又不失实用空间的储纳空间。

中海汇德理-127平-现代风格-主卧.jpg

卧室的设计比较简约,主要床头做了一部分墙板的点缀,让卧室空前有一些层次感。

中海汇德理-127平-现代风格-卫生间.jpg

卫生间采用的灰色大板砖,配合洁白的手盆和坐便让空间有一点高级感。

中海汇德理-127平-现代风格-厨房.jpg

本案是半开放式厨房,隐藏式拉门的设计,即让餐厅和厨房连接在一起 ,又解决了中式厨房的油烟问题。

中海汇德理-127平-现代风格-过廊.jpg 中海汇德理-127平-现代风格-平面方案.jpg

案例设计师

姜宇

设计师:姜宇

从业时间:18年

设计理念:适合人居舒适的环境设计才是好设计

预约设计师

算算你家装修多少钱

报名即享丰厚赠品,享半价装修

免费报价
咨询热线:400-656-9909
20190221103704574636.jpg

精品设计案例

20180612134930523248.jpg 服务号二维码.jpg