 
        
     立即预约
        立即预约
     
            免费定制整装家居
一站置家 全程无忧 一省到底 
        设计理念:本案是现代风格,现代风格是以简洁的表现形式来满足人们对空间环境的那种感性的需求,简单的设计,但是又能满足主人对空间,颜色,造型等等方面的满足,没有明度或者纯度高的颜色,主要是以灰白色为主,给人的感觉是非常放松的设计手法。
案例详情
 
                                                                             
                                                                             
                                                                             
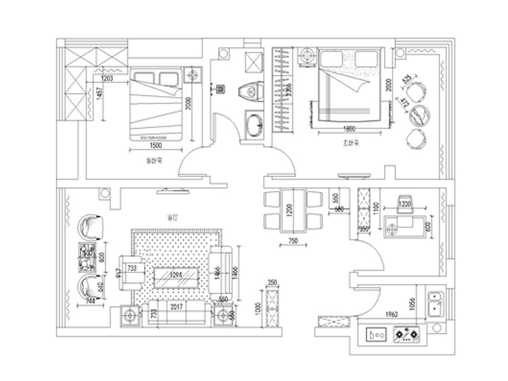
                                                                            客厅简单的直线吊棚,灰色布艺沙发,使整体空间十分的干净,白色砖艺硅藻泥背景墙搭配风扇式吊灯使客厅整体空间简约不简单。
 
                                                                            白色烤漆餐桌,灰色椅背与客厅整体空间相协调,一气呵成。
 
                                                                            卫生间墙砖选择米黄色系列的砖,米白色卫浴,去卫生间时心情都特别好.
 
                                                                            由于厨房空间狭长,所以颜色搭配上较统一,地砖采用白色,橱柜采用烤漆材质,美观又便打理。
 
                                                                精品设计案例
 
            设计说明:
                        
 三室两厅一厨两卫,高层整体采用美式风格,色调以深色为主,体现美式的居家感和温馨感。                    
 
             
            设计说明:
                        
 本案业主为年轻时尚小两口,所以我们考虑到未来想要给未来宝宝一个温馨舒适的一个房间,所以本案整体采用现代风格的手法,运用颜色,来打造整体空间的设计感及时尚感                    
 
             
            设计说明:
                        
 本案以北欧风格为主题的设计,北欧风格能以现代、简洁、自然的特点俘获人心,所营造出来的生活氛围会让人倍感舒适与自在。                    
 
             
            设计说明:
                        
 客户是一名成功人士,对于家的执念就是简单干净,客户衣服比较多,所以把每个空间都做了大衣柜,并且融入到设计里                    
