 
        
     立即预约
        立即预约
     
            免费定制整装家居
一站置家 全程无忧 一省到底 
        当前位置: 首页 > 装修案例效果图 > 富力星月湾|现代简约
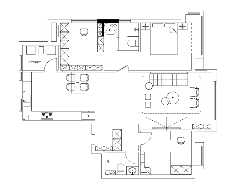
设计理念:设计师整体设计理念:现代简约,改善型住房 ,三口之家,根据客户需求对房屋收纳空间和厨房空间加以优化。
 
                                                                             
                                                                             
                                                                            客厅说明: 客厅造型以轻奢风格为主,室内空间感简明开阔,沙发背景以收纳储物为主,简约玻璃门进行点缀,打破单调,加以钨钢金属条轻奢感极强。背景墙隐藏门设计让门与景墙融为一体。
 
                                                                            餐厅说明:餐厅与客厅搭配融为一体,主体色条形成一致。餐桌椅以及酒柜颜色和整体颜色相呼应,灯具颜色提升颜色亮点但又不和主体起到冲突,美观简洁
 
                                                                             
                                                                            卧室说明:卧室的颜色和房屋整体颜色一致,卧室部分选用颜色显得沉稳不浮夸,配上床饰舒适度强,能给户主在家的感觉放松到极致
 
                                                                             
                                                                            卫生间说明:卫生间采用单手盆设计方便使用 空间使用率更高 现代人生活节奏快 体现合理使用上的人性化,双卫生间更能方便使用错过早起的忙碌时间。
 
                                                                            厨房说明:开放和餐桌链接,橱柜使得厨房的储物及摆放更为突出,体现厨房最大的利用价值,双开门冰箱能给客户带来更加便利的生活享受
 
                                                                             
                                                                             
                                                                精品设计案例
 
            设计说明:
                        
 三室两厅一厨两卫,高层整体采用美式风格,色调以深色为主,体现美式的居家感和温馨感。                    
 
             
            设计说明:
                        
 本案业主为年轻时尚小两口,所以我们考虑到未来想要给未来宝宝一个温馨舒适的一个房间,所以本案整体采用现代风格的手法,运用颜色,来打造整体空间的设计感及时尚感                    
 
             
            设计说明:
                        
 本案以北欧风格为主题的设计,北欧风格能以现代、简洁、自然的特点俘获人心,所营造出来的生活氛围会让人倍感舒适与自在。                    
 
             
            设计说明:
                        
 客户是一名成功人士,对于家的执念就是简单干净,客户衣服比较多,所以把每个空间都做了大衣柜,并且融入到设计里                    
