 
        
     立即预约
        立即预约
     
            免费定制整装家居
一站置家 全程无忧 一省到底 
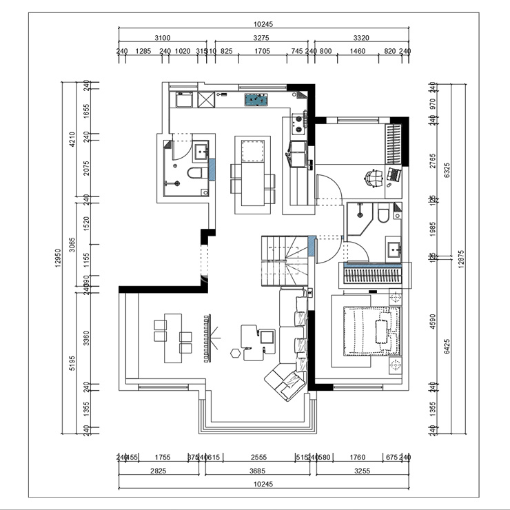
        设计理念:设计师整体设计理念: 现代简约风格:几何线条修饰 立面立体感强,是合理运用色块和彩带的装修风格,展示了现代生活的快节奏及简单实用的生活特征,同时充满活力。从功能出发,现代简约风格注重生活的舒适性,空间清晰美观,外观简洁大方。
 
                                                                             
                                                                            客厅说明: 简约是现代家装的核心理念之一。简洁的线条和干净的表面是现代设计的特色。在客厅中,可以选择简洁的家具和装饰品,减少不必要的繁杂元素,使空间显得整洁而不拥挤。选择简约的配色方案也是重要的,可以采用中性色调如灰色、白色和黑色,以增加空间的明亮感和空气感
 
                                                                            餐厅说明: 这里的简单不是一个简单的含义。在简约的餐厅装修中,一定要“大小兼顾”:大,是餐厅的整体设计理念;小,是空间的细节。现代简约的餐厅装修采用浅色调装饰,不仅使其看起来干净而且还能提升食欲。
 
                                                                             
                                                                            卧室说明:现代风格卧室注重空间的合理利用和功能性,在布置家具时,要根据卧室的大小和形状进行合理的规划,避免堆积和拥挤。可以选择嵌入式衣柜和收纳功能多样的家具,以提高卧室的整体利用率
 
                                                                            厨房说明:L型橱柜整体宽敞,布局合理,极大的放大空间,满足屋主的品质生活!
 
                                                                             
                                                                             
                                                                精品设计案例
 
            设计说明:
                        
 三室两厅一厨两卫,高层整体采用美式风格,色调以深色为主,体现美式的居家感和温馨感。                    
 
             
            设计说明:
                        
 本案业主为年轻时尚小两口,所以我们考虑到未来想要给未来宝宝一个温馨舒适的一个房间,所以本案整体采用现代风格的手法,运用颜色,来打造整体空间的设计感及时尚感                    
 
             
            设计说明:
                        
 本案以北欧风格为主题的设计,北欧风格能以现代、简洁、自然的特点俘获人心,所营造出来的生活氛围会让人倍感舒适与自在。                    
 
             
            设计说明:
                        
 客户是一名成功人士,对于家的执念就是简单干净,客户衣服比较多,所以把每个空间都做了大衣柜,并且融入到设计里                    
