立即预约 立即预约
免费定制整装家居

免费定制整装家居

一站置家 全程无忧 一省到底
hide.png

当前位置: 首页 > 装修案例效果图 > 城建璞邸|中式风格

城建璞邸|中式风格 137平 中式风格效果图

收藏
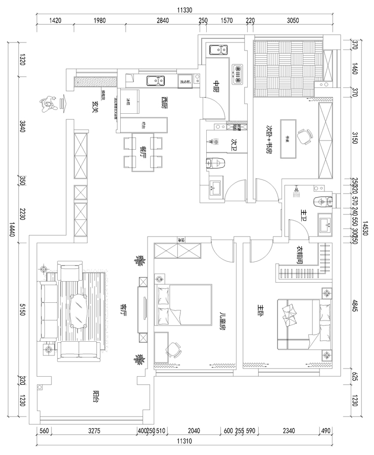
案例风格 中式 案例户型 三居 案例面积 137平米
楼盘名称 城建璞邸 设计师 林凤装饰全案设计师 案例类型 改善性住宅

设计理念:设计源于生活,生活因设计而改变,用有限的空间。做无限的设计,成就梦想之家。

客厅
第1张
餐厅
第1张
卧室
第1张
卫生间
第1张
第2张
厨房
第1张
第2张
书房
第1张
第2张
儿童房
第1张
门厅
第1张
户型图
第1张
城建璞邸-137㎡-中式风格--客厅.jpg

客厅整体轻装修重装饰的原则,搭配出中式的素雅,整个空间以红木家具为主轴,青灰色地砖的搭配呼应中式的恬静与自然,吊顶设计师做了一个小心机的设计,增加了整个空间的线条感,同时金色的碳钢条配饰更加凸显中式的雍容华贵的氛围。

城建璞邸-137㎡-中式风格--餐厅.jpg

餐厅与西厨相结合,高低错落的搭配,整个台面用天然石材装扮,同时实木家具的质感更显得整个空间的开阔与贵气。

城建璞邸-137㎡-中式风格--主卧.jpg

卧室空间整体采用新中式风格,中式挂画的色彩与窗帘,床品等相呼应,简单的石膏线修饰增加了空间的线条感,窗帘的的色彩尤为是新中式的主题色。

城建璞邸-137㎡-中式风格--主卫.jpg 城建璞邸-137㎡-中式风格--次卫.jpg

5.主卫整体为理石纹理暖色系的墙地砖,实木浴室柜的搭配使整个空间更为温馨。次卫则采用的是冷色系的理石纹理的墙地砖,多了一个庄重与整洁,同时银色淋浴房与浴室柜的台上盆相呼应的设计增加了整个空间的现代感。

城建璞邸-137㎡-中式风格--厨房.jpg 城建璞邸-137㎡-中式风格--西厨.jpg

厨房是中西厨分离的形式,西厨与餐厅相结合,是餐厅空间的储物增加了很多,同时西厨的台面的设计更增加了操作性便利,同时实木的橱柜以及深胡桃木的色彩呼应整体风格。

城建璞邸-137㎡-中式风格--书房2.jpg 城建璞邸-137㎡-中式风格--书房.jpg 城建璞邸-137㎡-中式风格--儿童房.jpg 城建璞邸-137㎡-中式风格--门厅.jpg 城建璞邸-137㎡-中式风格--平面图.jpg

案例设计师

林凤装饰全案设计师

设计师:林凤装饰全案设计师

从业时间:5年

设计理念:设计源于生活,细节成就品质。

预约设计师

算算你家装修多少钱

报名即享丰厚赠品,享半价装修

免费报价
咨询热线:400-656-9909
20190221103704574636.jpg

精品设计案例

20180612134930523248.jpg 服务号二维码.jpg