立即预约 立即预约
免费定制整装家居

免费定制整装家居

一站置家 全程无忧 一省到底
hide.png

当前位置: 首页 > 装修案例效果图 > 远洋和平府|新中式

远洋和平府|新中式 150平 新中式风格效果图

收藏
案例风格 新中式 案例户型 三居 案例面积 150平米
楼盘名称 远洋和平府 设计师 林凤设计师 案例类型 改善性住宅

设计理念:诸如暗香浮动,把意境驻留于空间,结合当代手法,结合中国文化特征,展现一个魅力无限且独具气质品味的空间

客厅
第1张
第2张
第3张
餐厅
第1张
卧室
第1张
第2张
第3张
第4张
卫生间
第1张
第2张
厨房
第1张
门厅
第1张
过廊
第1张
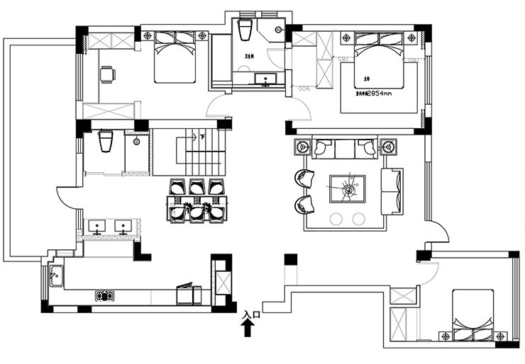
户型图
第1张
远洋和平府-150-新中式风格-客厅.jpg 远洋和平府-150-新中式风格-客厅1.jpg 远洋和平府-150-新中式风格-客厅2.jpg

客厅以传统中国水墨画和木色为基调,通过深沉暗雅的色相过度、自然纤维的融合渗透,把生命体无形的能量融入其中,创造出独特的审美,传递着当代东方美学的安然、笃定和恒久。

远洋和平府-150-新中式风格-餐厅.jpg

材质本身就是一种语言,用天然、质朴的材质,去诉说最真实的故事。餐桌仪式的呈现是通过不同自然材质的器皿搭配和绿植的点缀,悄无声息的将生活的烟火气落定。

远洋和平府-150-新中式风格-北卧室.jpg 远洋和平府-150-新中式风格-北卧室露台.jpg 远洋和平府-150-新中式风格-主卧室.jpg 远洋和平府-150-新中式风格-主卧室1.jpg

主卧秉承了古典风格的典雅和华贵,注重空间居住的舒适度和实用性。宽敞的衣帽间满足主人舒适更衣及储物

远洋和平府-150-新中式风格-次卫.jpg 远洋和平府-150-新中式风格-次卫1.jpg 远洋和平府-150-新中式风格-厨房.jpg

厨房空间放弃了传统的厨房空间必须明亮的设计 搭配的更加内敛和深邃 深灰色的墙砖搭配藏蓝色橱柜 提升了整体空间的时尚和品位

远洋和平府-150-新中式风格-玄关.jpg 远洋和平府-150-新中式风格-过廊.jpg 远洋和平府-150-新中式风格-平面图.jpg

案例设计师

林凤设计师

设计师:林凤设计师

从业时间:8年

设计理念:做有生活的设计。

预约设计师

算算你家装修多少钱

报名即享丰厚赠品,享半价装修

免费报价
咨询热线:400-656-9909
20190221103704574636.jpg

精品设计案例

20180612134930523248.jpg 服务号二维码.jpg