 
        
     立即预约
        立即预约
     
            免费定制整装家居
一站置家 全程无忧 一省到底 
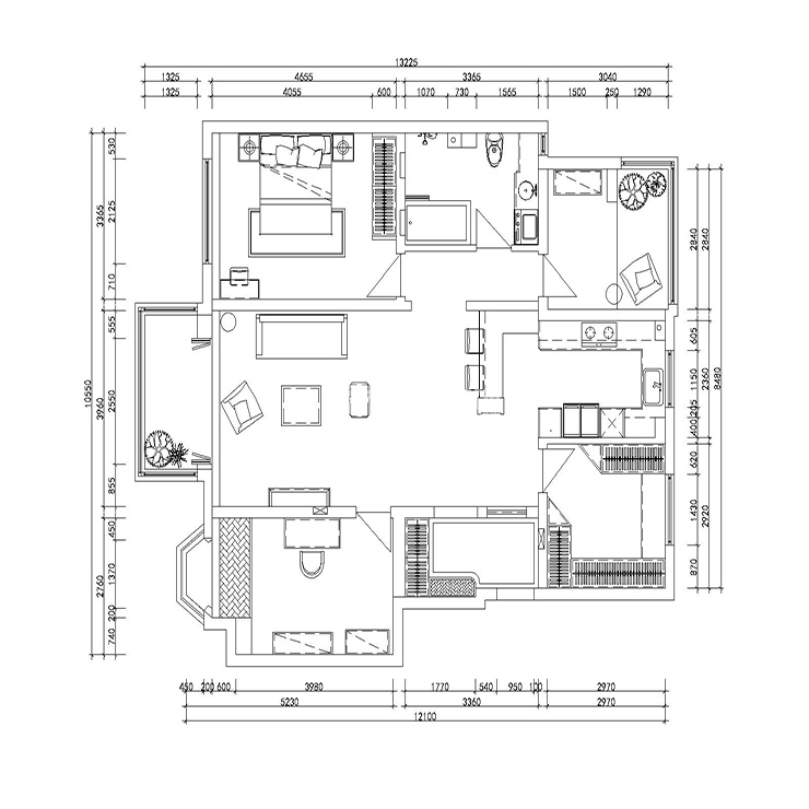
        设计理念:本案例为美式风格,房屋结构基本满足屋主的需求,储物空净需求量大,合理的设计方案,在满足储物空间需求的同时,也不会让人感到拥挤,精美的石膏线条展现出了美式风格的特点。
 
                                                                             
                                                                            客厅沙发以奶茶色调作为打底,墙面镶嵌石膏线条,整个空间采用无主灯设计,并没有利用太多华丽的装饰,别的墙面以奶茶色和穿白色双拼为主,木色家具和绿色的植物让空间的更加协调有节奏感。
 
                                                                             
                                                                            主卧室是主人最放松的地方,以雅致的紫色作为房间的主色调,紫色的背景墙面加上白色的柜子,通过软配饰的搭配和硬装的处理使整个空间更加有情调。
 
                                                                            卫生间的墙面采用奶茶色和绿色墙砖,地面是白色的小方格地砖,蔚蓝色的浴室柜,淋浴区墙面采用花砖铺贴,整个空间颜色成熟稳重的同时又不失品位。
 
                                                                             
                                                                            厨房墙面采用白色小竖条瓷砖,木色和蔚蓝色的橱柜干净整洁的同时又将美式风展现的淋漓尽致。多功能的操作台、内嵌家电的高柜区以及大量的储物空间,让喜爱烹饪的业主对厨房更加的热爱。
 
                                                                             
                                                                             
                                                                            玄关位置墙面以奶茶色为主色调,墨绿色作为整个空间的点缀,搭配木色鞋帽柜,地面平花地砖,整体空间比较宽敞。
 
                                                                精品设计案例
 
            设计说明:
                        
 三室两厅一厨两卫,高层整体采用美式风格,色调以深色为主,体现美式的居家感和温馨感。                    
 
             
            设计说明:
                        
 本案业主为年轻时尚小两口,所以我们考虑到未来想要给未来宝宝一个温馨舒适的一个房间,所以本案整体采用现代风格的手法,运用颜色,来打造整体空间的设计感及时尚感                    
 
             
            设计说明:
                        
 本案以北欧风格为主题的设计,北欧风格能以现代、简洁、自然的特点俘获人心,所营造出来的生活氛围会让人倍感舒适与自在。                    
 
             
            设计说明:
                        
 客户是一名成功人士,对于家的执念就是简单干净,客户衣服比较多,所以把每个空间都做了大衣柜,并且融入到设计里                    
