 
        
     立即预约
        立即预约
     
            免费定制整装家居
一站置家 全程无忧 一省到底 
        设计理念:新北花园简约现代风格的设计理念是以舒适美观性为主,让整体效果最大化,满足居住者的要求,让设计真真正正的走进生活。
案例详情
 
                                                                             
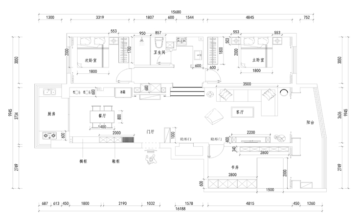
                                                                            客厅地面采用800*800灰色云石系列瓷砖,电视背景墙和餐厅背景墙均采用了造型,电视背景墙采用墙板和理石,沙发背景墙则采用了硬包加金属条修饰,客厅的吊顶也采用铜色碳钢条做修饰,这样吊顶和沙发背景形成了一体。
 
                                                                             
                                                                            餐厅是跟厨房在一体的,餐厅在厨房的中间,厨房采用石膏板平棚,因为餐厅厨房是跟客厅门厅连在一体的
 
                                                                             
                                                                             
                                                                            卫生间设计了干湿两个分区,里面是湿区,外面为干区,卫生间内由于光线比较暗没有窗户,墙砖则采用了浅灰色,干区光线比较好,干区采用深灰色瓷砖,干区浴室柜都用采用定制,这样整体的效果会更加突出。
 
                                                                精品设计案例
 
            设计说明:
                        
 三室两厅一厨两卫,高层整体采用美式风格,色调以深色为主,体现美式的居家感和温馨感。                    
 
             
            设计说明:
                        
 本案业主为年轻时尚小两口,所以我们考虑到未来想要给未来宝宝一个温馨舒适的一个房间,所以本案整体采用现代风格的手法,运用颜色,来打造整体空间的设计感及时尚感                    
 
             
            设计说明:
                        
 本案以北欧风格为主题的设计,北欧风格能以现代、简洁、自然的特点俘获人心,所营造出来的生活氛围会让人倍感舒适与自在。                    
 
             
            设计说明:
                        
 客户是一名成功人士,对于家的执念就是简单干净,客户衣服比较多,所以把每个空间都做了大衣柜,并且融入到设计里                    
