 
        
     立即预约
        立即预约
     
            免费定制整装家居
一站置家 全程无忧 一省到底 
        设计理念:本案以稳重的中式原木色家具搭配现代层次分明的现代吊棚,地面以柔光的棕灰色地砖搭配边线突出空间层级,几副中式装饰画结合素色壁纸搭配‘营造出一个悠闲舒适、清雅的中式风格。
案例详情
 
                                                                             
                                                                             
                                                                            越秀星汇云锦168平三室两厅新中式风格林凤装饰的客厅沙发背景墙采用壁布似山水画的设计外加大理石背景墙,从而体现出一种低调的新中式,阳台部分做成茶室,下面是榻榻米的暗格,同时增添了收纳空间,榻榻米上方做成展示柜,凸显出新中式的气息。
 
                                                                             
                                                                             
                                                                            越秀星汇云锦168平三室两厅新中式风格林凤装饰的餐厅餐桌为了搭配整体的色系,采用深色纯实木的餐桌,侧面放置壁画,餐厅和客厅区域用小屏风相隔开,使整体看起来更简洁。
 
                                                                            越秀星汇云锦168平三室两厅新中式风格林凤装饰的主卧室做成套房的设计,床头搭配全包背景墙,床头上面放置中式点缀作为卧室空间整体文化的设计亮点。
 
                                                                            越秀星汇云锦168平三室两厅新中式风格林凤装饰的卫生间主卫采用双手盆,方便二人使用,大纹理的理石背景墙,让整个卫生间看起来更宽敞,高档大气。
 
                                                                            越秀星汇云锦168平三室两厅新中式风格林凤装饰的厨房采用哑光香槟金色的橱柜面板,搭配点缀白色台板,作用冰箱电器一体柜,整体抬高了厨房的档次。
 
                                                                            越秀星汇云锦168平三室两厅新中式风格林凤装饰的过廊
 
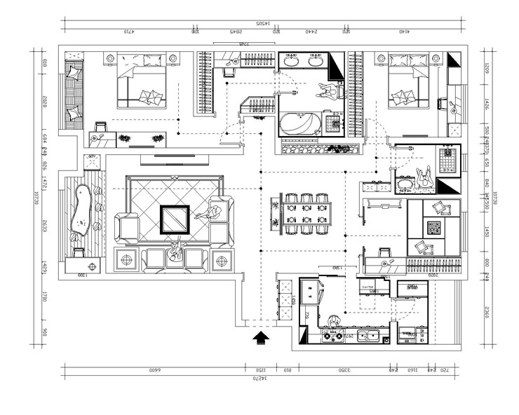
                                                                            户型图
精品设计案例
 
            设计说明:
                        
 三室两厅一厨两卫,高层整体采用美式风格,色调以深色为主,体现美式的居家感和温馨感。                    
 
             
            设计说明:
                        
 本案业主为年轻时尚小两口,所以我们考虑到未来想要给未来宝宝一个温馨舒适的一个房间,所以本案整体采用现代风格的手法,运用颜色,来打造整体空间的设计感及时尚感                    
 
             
            设计说明:
                        
 本案以北欧风格为主题的设计,北欧风格能以现代、简洁、自然的特点俘获人心,所营造出来的生活氛围会让人倍感舒适与自在。                    
 
             
            设计说明:
                        
 客户是一名成功人士,对于家的执念就是简单干净,客户衣服比较多,所以把每个空间都做了大衣柜,并且融入到设计里                    
