 
        
     立即预约
        立即预约
     
            免费定制整装家居
一站置家 全程无忧 一省到底 
        设计理念:房子是高层三室两卫户型所以实际面积就并不大,为了更多满足业主的需要后期的搭配很是重要。颜色材质将成为空间风格的必要搭配之一。
案例详情
 
                                                                             
                                                                             
                                                                            保利香槟国际116平三室两厅现代风格林凤装饰的客厅采用白色理石纹理的瓷砖成为了空间首选。沙发选择浅灰色布艺舒适耐用。电视背景墙采用电视柜结构作为搭配。增加了储物空间的同时,也大大的提高了客厅的档次和色彩搭配。
 
                                                                            保利香槟国际116平三室两厅现代风格林凤装饰的餐厅和客厅相连接的户型。餐桌将保留六人位餐桌。完全满足了所有人的使用。餐桌上面的餐厅吊灯不仅仅也是为了就餐所需,更多的是也是为了凸显客餐厅的间隔。
 
                                                                            保利香槟国际116平三室两厅现代风格林凤装饰的卧式舒适度是衡量卧室的必要条件之一。松软的床绝对可以让业主更快进入梦乡。定制的衣帽柜绝对是卧室的首选,中性色彩的壁纸也完全和风格仅仅搭配到一起。
 
                                                                            保利香槟国际116平三室两厅现代风格林凤装饰的卫生间因业主家人多,所以卫生间选择双手盆的格局是为了业主在早高峰时间段使用卫生间带来方便。为了能让卫生间更加干净整洁搭配了浴缸,浴屏做到了干湿分离。
 
                                                                            保利香槟国际116平三室两厅现代风格林凤装饰的厨房择选择了封闭式的一个处理。玻璃联动推拉门成为主要划分隔断。白色饰面板材质的橱柜干净整洁。瓷砖选择了白色仿理石纹理做为搭配。满足了业主的洗,切,炒的同时 厨房也是亮点所在之一。
 
                                                                             
                                                                            保利香槟国际116平三室两厅现代风格林凤装饰的过廊
 
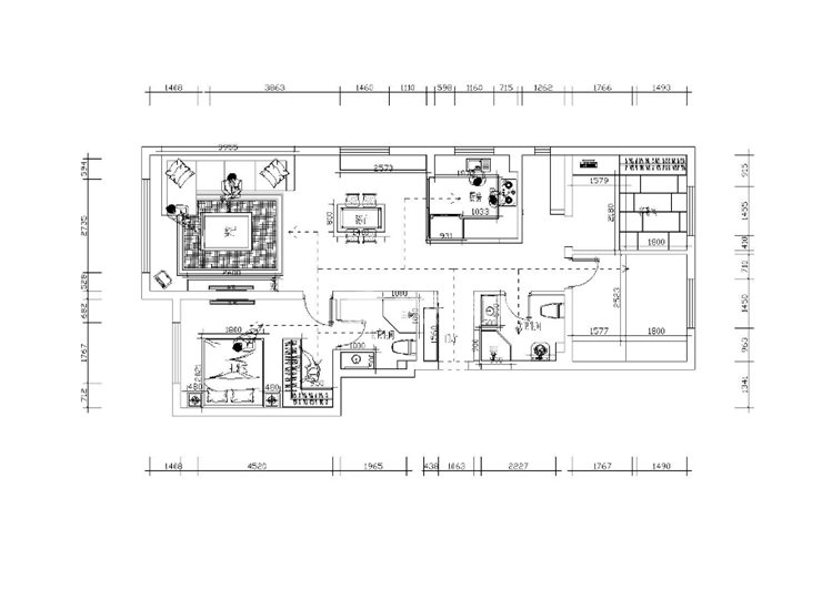
                                                                            户型图
精品设计案例
 
            设计说明:
                        
 三室两厅一厨两卫,高层整体采用美式风格,色调以深色为主,体现美式的居家感和温馨感。                    
 
             
            设计说明:
                        
 本案业主为年轻时尚小两口,所以我们考虑到未来想要给未来宝宝一个温馨舒适的一个房间,所以本案整体采用现代风格的手法,运用颜色,来打造整体空间的设计感及时尚感                    
 
             
            设计说明:
                        
 本案以北欧风格为主题的设计,北欧风格能以现代、简洁、自然的特点俘获人心,所营造出来的生活氛围会让人倍感舒适与自在。                    
 
             
            设计说明:
                        
 客户是一名成功人士,对于家的执念就是简单干净,客户衣服比较多,所以把每个空间都做了大衣柜,并且融入到设计里                    
