 
        
     立即预约
        立即预约
     
            免费定制整装家居
一站置家 全程无忧 一省到底 
        设计理念:空间面积实际面积客观户型合理,设计上绝对不能过于老套。所以此案定义为港式轻奢。以现代风格基础做基础搭配高贵的深色墙板配合理石镜面等材质完成整体搭配构图。每一寸空间都得到合理化的运用。
案例详情
 
                                                                             
                                                                             
                                                                             
                                                                             
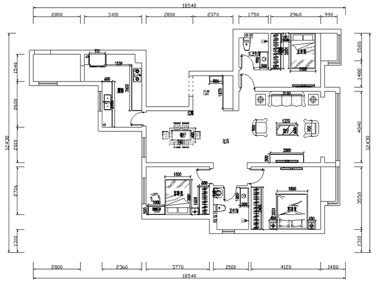
                                                                            尚景新世界156平三室两厅港式轻奢风格林凤装饰的轻奢的客厅必须要有一个好的造型吊棚来突显出整体的空间。墙板和定制柜配合做出的背景墙也是整体的空间的一大亮点,家具的搭配也是在家具选择材质上以布绒和皮质结合来做的搭配。因为举架空间够高整体也安装了中央空调系统。为了空间的利用所用的棚面也做出了区域性的划分和结合。
 
                                                                             
                                                                            尚景新世界156平三室两厅港式轻奢风格林凤装饰的餐厅和厨房相连接 开放式的厨房对面就是一家就餐的餐厅 空间足够大的前提 摆放了圆桌 够有档次和提升 餐厅了做个石材背景墙面也是为了凸显风格定位和搭配。
 
                                                                            尚景新世界156平三室两厅港式轻奢风格林凤装饰的卧室舒适度是衡量一个卧室的基本条件。中性色彩的墙面配合2米2以上的大床。床头配备皮质靠枕放松舒适。凸显卧室的品味衣柜也做了透明玻璃处理。搭配上彩色灯光的烘托衣柜也成了卧室的点睛之笔。
 
                                                                            尚景新世界156平三室两厅港式轻奢风格林凤装饰的卫生间仿理石纹理的墙砖分割上下整体通铺使得卫生间更加靓丽。双手盆的格局是为了业主在早高峰时间段使用卫生间带来方便。为了能让卫生间更加干净整洁搭配了浴缸,浴屏做到了干湿分离。
 
                                                                            尚景新世界156平三室两厅港式轻奢风格林凤装饰的厨房做成开放式的厨房绝对是空间的一大亮点,浅白色仿大理石文理瓷砖搭配上香槟色烤漆橱柜是绝顶的搭配。整体柜体也搭配为深色黑檀木色显得高柜大气。同时也增加了岛台的设计。开放式的厨房绝对称得上是整体的惊鸿一瞥。
 
                                                                精品设计案例
 
            设计说明:
                        
 三室两厅一厨两卫,高层整体采用美式风格,色调以深色为主,体现美式的居家感和温馨感。                    
 
             
            设计说明:
                        
 本案业主为年轻时尚小两口,所以我们考虑到未来想要给未来宝宝一个温馨舒适的一个房间,所以本案整体采用现代风格的手法,运用颜色,来打造整体空间的设计感及时尚感                    
 
             
            设计说明:
                        
 本案以北欧风格为主题的设计,北欧风格能以现代、简洁、自然的特点俘获人心,所营造出来的生活氛围会让人倍感舒适与自在。                    
 
             
            设计说明:
                        
 客户是一名成功人士,对于家的执念就是简单干净,客户衣服比较多,所以把每个空间都做了大衣柜,并且融入到设计里                    
