 
        
     立即预约
        立即预约
     
            免费定制整装家居
一站置家 全程无忧 一省到底 
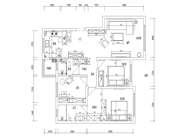
        设计理念:北欧风格主要体现为简约而不简单,都市快节奏,满足功能需求的同时,尽量让空间变得更加精炼。该案例以冷暖结合为基调,为业主创造出愉悦、舒适的居住氛围。
案例详情
 
                                                                             
                                                                             
                                                                             
                                                                            碧桂园大成印象119平三室两厅北欧风格林凤装饰的客厅比较宽敞,电视背景墙采用灰蓝色乳胶漆艺,简洁时尚的同时更给客厅颜色空间增加了对比感,后期一套现代化的家具和灯具瞬间让整个空间感觉更加时尚诙谐。
 
                                                                            碧桂园大成印象119平三室两厅北欧风格林凤装饰的餐厅
 
                                                                             
                                                                            碧桂园大成印象119平三室两厅北欧风格林凤装饰的卧室温馨舒适的空间卧室,软包布艺床,现代化的休闲垂钓灯, 暖色的乳胶漆墙面,浑然一体瞬间把空间调控起来。
 
                                                                             
                                                                             
                                                                             
                                                                            碧桂园大成印象119平三室两厅北欧风格林凤装饰的卫生间干湿分离设计,时尚的吊柜手盆和镜箱卫浴,把原有狭小的空间增添了艺术感,同时也满足了后期家人洗漱等诸多问题,最大的亮点就是镂空的金属隔断墙,因为它使整个空间变得更宽敞。
 
                                                                            碧桂园大成印象119平三室两厅北欧风格林凤装饰的厨房和餐厅公用,年轻人的大胆想法,转角吧台式餐桌的运用,时尚的同时也能满足一家就餐的需求,开放式的厨房更加显得空间宽敞明亮
 
                                                                             
                                                                            碧桂园大成印象119平三室两厅北欧风格林凤装饰的书房
 
                                                                            碧桂园大成印象119平三室两厅北欧风格林凤装饰的玄关
 
                                                                精品设计案例
 
            设计说明:
                        
 三室两厅一厨两卫,高层整体采用美式风格,色调以深色为主,体现美式的居家感和温馨感。                    
 
             
            设计说明:
                        
 本案业主为年轻时尚小两口,所以我们考虑到未来想要给未来宝宝一个温馨舒适的一个房间,所以本案整体采用现代风格的手法,运用颜色,来打造整体空间的设计感及时尚感                    
 
             
            设计说明:
                        
 本案以北欧风格为主题的设计,北欧风格能以现代、简洁、自然的特点俘获人心,所营造出来的生活氛围会让人倍感舒适与自在。                    
 
             
            设计说明:
                        
 客户是一名成功人士,对于家的执念就是简单干净,客户衣服比较多,所以把每个空间都做了大衣柜,并且融入到设计里                    
