 
        
     立即预约
        立即预约
     
            免费定制整装家居
一站置家 全程无忧 一省到底 
        设计理念:整体设计是以美式造型,现代家具为主,整个空间设计明亮大方,没有风格的局限性。
案例详情
 
                                                                             
                                                                             
                                                                             
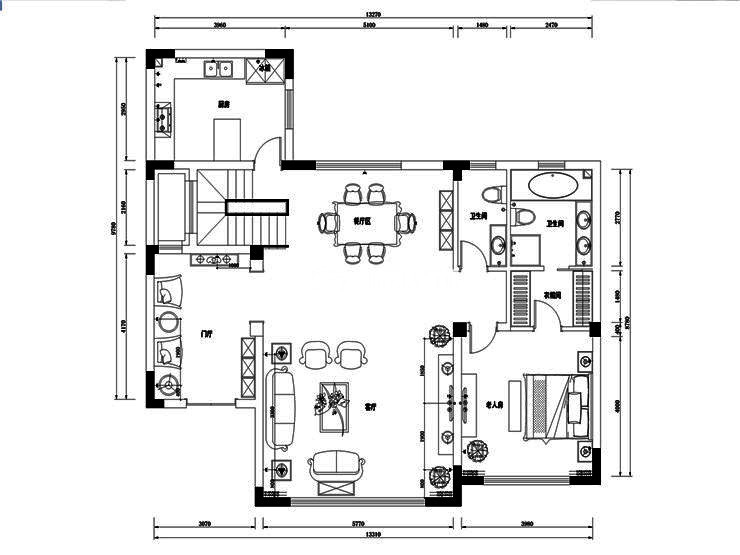
                                                                            锦园450平别墅美式风格林凤装饰的客厅以文化石作为背景墙,文化石肌理偏向舒适,整体色彩土黄色,配合实木色彩,材质,沉静,大气。
 
                                                                            锦园450平别墅美式风格林凤装饰的餐厅独立,高档家具,简单边柜,配上照片墙装饰,墙面无需复杂造型,高端有品位的人生赢家。
 
                                                                            锦园450平别墅美式风格林凤装饰的卧室是储藏式设计,定制衣柜完美的解决了成品衣柜储物空间分割不合理的情况,窗帘的选择也是令人耳目一新的,这样解决了空间不对称的问题。
 
                                                                            锦园450平别墅美式风格林凤装饰的卫生间以米色的墙砖,欧洲经典的宫廷色彩,美洲与欧洲一麦相成,圆形浴缸,理石包边,享受生活,洗手台与整体风格协调统一。
 
                                                                            锦园450平别墅美式风格林凤装饰的厨房对于一些人,会设计的非常大,然而对他们,厨房够用就好,他们喜欢中餐,而且做饭不多,标准的厨房橱柜设计。色彩干净沉稳。
 
                                                                            锦园450平别墅美式风格林凤装饰的影音室
 
                                                                            锦园450平别墅美式风格林凤装饰的玄关
 
                                                                精品设计案例
 
            设计说明:
                        
 三室两厅一厨两卫,高层整体采用美式风格,色调以深色为主,体现美式的居家感和温馨感。                    
 
             
            设计说明:
                        
 本案业主为年轻时尚小两口,所以我们考虑到未来想要给未来宝宝一个温馨舒适的一个房间,所以本案整体采用现代风格的手法,运用颜色,来打造整体空间的设计感及时尚感                    
 
             
            设计说明:
                        
 本案以北欧风格为主题的设计,北欧风格能以现代、简洁、自然的特点俘获人心,所营造出来的生活氛围会让人倍感舒适与自在。                    
 
             
            设计说明:
                        
 客户是一名成功人士,对于家的执念就是简单干净,客户衣服比较多,所以把每个空间都做了大衣柜,并且融入到设计里                    
