 
        
     立即预约
        立即预约
     
            免费定制整装家居
一站置家 全程无忧 一省到底 
        设计理念:设计代表的是一种生活态度,家是品味的彰显。
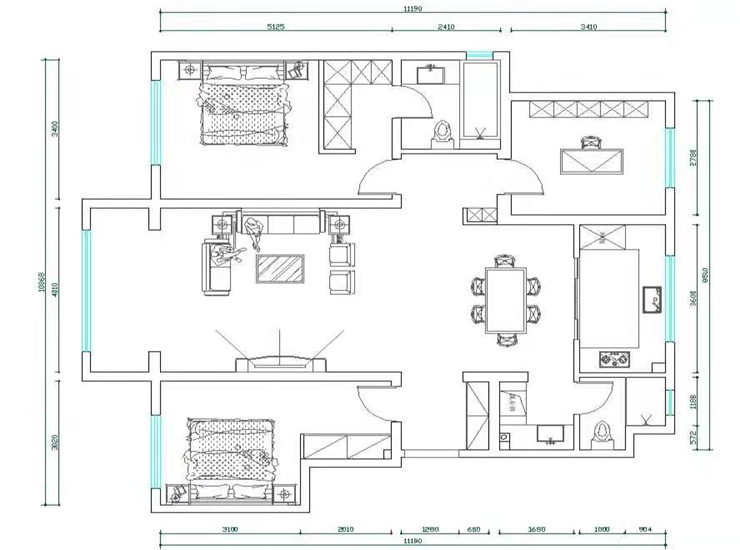
案例详情
 
                                                                             
                                                                             
                                                                             
                                                                            和平区保利茉莉公馆三室两厅轻奢风格林凤装饰的电视背景墙使用白色理石砖上墙,两侧搭配灰色护墙板,两侧搭配了壁灯,这几种元素相结合彰显了干净大气气派的感觉。
 
                                                                            和平区保利茉莉公馆三室两厅轻奢风格林凤装饰的餐桌是六人桌满足了用餐需求,餐厅顶面吊了一圈吊顶丰富了层次增加了辅助光源。餐厅背景墙一侧运用了造型护墙板体现了跟客厅的整体性。另一侧挂放了装饰时钟现代感十足。
 
                                                                            和平区保利茉莉公馆三室两厅轻奢风格林凤装饰的主卧室采用灰色调,营造了宁静的感觉。床头背景贴了深色壁纸搭配两幅装饰画很有个性。米白色的床显得温馨时尚。深色地板搭配浅色地毯很有质感。
 
                                                                            和平区保利茉莉公馆三室两厅轻奢风格林凤装饰的卫生间采用灰色大理石墙砖显得很有整体性,壁柜浴室柜很有设计感,白色的马桶提亮了整个空间。
 
                                                                            和平区保利茉莉公馆三室两厅轻奢风格林凤装饰的厨房做的是U型橱柜,最大限度满足使用功能整个空间非常宽敞,浅色砖搭配深色橱柜形成鲜明对比。白色石膏板的吊顶也很有档次。
 
                                                                            和平区保利茉莉公馆三室两厅轻奢风格林凤装饰的衣帽间
 
                                                                            和平区保利茉莉公馆三室两厅轻奢风格林凤装饰的过廊
 
                                                                精品设计案例
 
            设计说明:
                        
 三室两厅一厨两卫,高层整体采用美式风格,色调以深色为主,体现美式的居家感和温馨感。                    
 
             
            设计说明:
                        
 本案业主为年轻时尚小两口,所以我们考虑到未来想要给未来宝宝一个温馨舒适的一个房间,所以本案整体采用现代风格的手法,运用颜色,来打造整体空间的设计感及时尚感                    
 
             
            设计说明:
                        
 本案以北欧风格为主题的设计,北欧风格能以现代、简洁、自然的特点俘获人心,所营造出来的生活氛围会让人倍感舒适与自在。                    
 
             
            设计说明:
                        
 客户是一名成功人士,对于家的执念就是简单干净,客户衣服比较多,所以把每个空间都做了大衣柜,并且融入到设计里                    
