 
        
     立即预约
        立即预约
     
            免费定制整装家居
一站置家 全程无忧 一省到底 
        设计理念:本案是现代风格,在整体的色调上选择的是黑色,灰色,白色为主,室内的家具是金属条 木纹为主,凸显出现代时尚的感觉。
案例详情
 
                                                                             
                                                                             
                                                                             
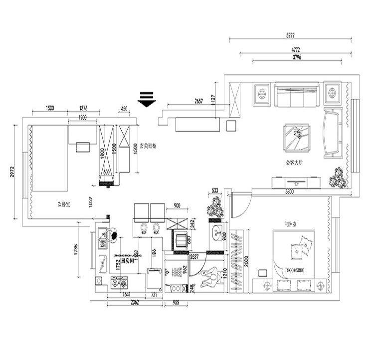
                                                                            保利香槟国际89平两室两厅现代风格林凤装饰的客厅主要作用是满足客户生活起居,家具上选择了灰色的真皮沙发,靠枕黄色和橘色的配饰作为点缀,木质的茶几,背景墙采用了大理石搭配木板,配上现代的电视柜,显得简单大方,主要目的就是把现代风格的一些特点体现出来。
 
                                                                            保利香槟国际89平两室两厅现代风格林凤装饰的餐厅是一个独立区域 ,与厨房做菜区较为接近,用餐更加方便。
 
                                                                            保利香槟国际89平两室两厅现代风格林凤装饰的卧室床头背景是用灰色调壁纸,既增加了档次,也使整个室内更加温馨,原木色的地板与墙面相互配合,将整体卧室显得尤为干净。
 
                                                                             
                                                                            保利香槟国际89平两室两厅现代风格林凤装饰的卫生间设计了长方形浴屏,增加了生活的舒适性,淡灰色的瓷砖和白色的洁具形成了鲜明的对比。浴缸上方造型条隔既增加了储藏也起到了装饰的效果。
 
                                                                            保利香槟国际89平两室两厅现代风格林凤装饰的厨房采用的是干净明亮的白色橱柜,配合灰色瓷砖显得更为明亮,L形橱柜经济方便适用。
 
                                                                精品设计案例
 
            设计说明:
                        
 三室两厅一厨两卫,高层整体采用美式风格,色调以深色为主,体现美式的居家感和温馨感。                    
 
             
            设计说明:
                        
 本案业主为年轻时尚小两口,所以我们考虑到未来想要给未来宝宝一个温馨舒适的一个房间,所以本案整体采用现代风格的手法,运用颜色,来打造整体空间的设计感及时尚感                    
 
             
            设计说明:
                        
 本案以北欧风格为主题的设计,北欧风格能以现代、简洁、自然的特点俘获人心,所营造出来的生活氛围会让人倍感舒适与自在。                    
 
             
            设计说明:
                        
 客户是一名成功人士,对于家的执念就是简单干净,客户衣服比较多,所以把每个空间都做了大衣柜,并且融入到设计里                    
