 
        
     立即预约
        立即预约
     
            免费定制整装家居
一站置家 全程无忧 一省到底 
        设计理念:房间整体色调以浅色色调为主,局部加入木质元素使房间的整体品质有所提高,使用深色家具点缀空间,提升房间整体舒适度。
案例详情
 
                                                                             
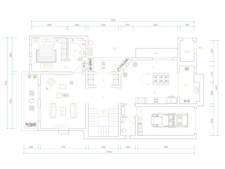
                                                                            新希望紫檀山400平别墅新古典风格林凤装饰的客厅整体开间很宽,将客厅划分为两部分,一部分为会客区一部分为休闲区。客厅整体选用深色的家具,搭配米黄色的墙体与窗帘使整个客厅更加的高级,沙发选用米色系与深蓝色单体沙发搭配,使客厅整体搭配更加沉稳。
 
                                                                            新希望紫檀山400平别墅新古典风格林凤装饰的餐厅区域整体较大,所以将西厨合并在一起。家具随着整体风格一齐,简单的白色搭配深木色,使整个空间统一协调。
 
                                                                             
                                                                             
                                                                            【主卧室说明】卧室整体采用了浅色为主体的颜色,搭配以深色系的休闲椅使整个空间一眼看去宽敞明亮而又有变化。并且以米黄色的背景墙与罗马帘点缀整个空间,让整个空间不单调。【次卧室说明】室内壁纸采用了比较浅的颜色,家具也采用了白色的家具简洁大方。因是业主女儿居住所以采用了粉色的床品点缀空间并且富有公主感,美观又不失个性。
 
                                                                             
                                                                            新希望紫檀山400平别墅新古典风格林凤装饰的卫生间选用浅色大理石墙砖提升卫生间整体的空间感,采用了双盆的洁具设计,使生活不再拥挤繁忙。让整个卫生间空间美观整洁实用。
 
                                                                            新希望紫檀山400平别墅新古典风格林凤装饰的厨房选用白橱柜与浅色墙砖相互搭配,并使用深棕色台面划分区域,使厨房整体效果更加高级,深色台面更加好打理,而且可以提升厨房整体效果。
 
                                                                            新希望紫檀山400平别墅新古典风格林凤装饰的花园
 
                                                                            新希望紫檀山400平别墅新古典风格林凤装饰的书房
 
                                                                            新希望紫檀山400平别墅新古典风格林凤装饰的女儿房
 
                                                                             
                                                                            新希望紫檀山400平别墅新古典风格林凤装饰的过廊
 
                                                                精品设计案例
 
            设计说明:
                        
 三室两厅一厨两卫,高层整体采用美式风格,色调以深色为主,体现美式的居家感和温馨感。                    
 
             
            设计说明:
                        
 本案业主为年轻时尚小两口,所以我们考虑到未来想要给未来宝宝一个温馨舒适的一个房间,所以本案整体采用现代风格的手法,运用颜色,来打造整体空间的设计感及时尚感                    
 
             
            设计说明:
                        
 本案以北欧风格为主题的设计,北欧风格能以现代、简洁、自然的特点俘获人心,所营造出来的生活氛围会让人倍感舒适与自在。                    
 
             
            设计说明:
                        
 客户是一名成功人士,对于家的执念就是简单干净,客户衣服比较多,所以把每个空间都做了大衣柜,并且融入到设计里                    
