立即预约 立即预约
免费定制整装家居

免费定制整装家居

一站置家 全程无忧 一省到底
hide.png

当前位置: 首页 > 装修案例效果图 > 富海澜湾半岛

富海澜湾半岛 98平 北欧风格效果图

收藏
案例风格 北欧 案例户型 二居 案例面积 98平米
楼盘名称 富海澜湾半岛 设计师 林凤装饰设计师 案例类型 改善性住宅

设计理念:本案为北欧风格设计,以原木色为主去营造温馨浪漫的氛围。让回到家的你犹如置身于大自然之中,安逸而放松。

客厅
第1张
第2张
第3张
餐厅
第1张
卧室
第1张
卫生间
第1张
厨房
第1张
门厅
第1张
第2张
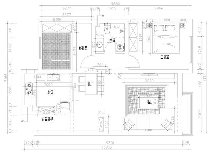
户型图
第1张
  • 案例详情

富海澜湾半岛-98平-北欧风格-客厅1.jpg 富海澜湾半岛-98平-北欧风格-客厅2.jpg 富海澜湾半岛-98平-北欧风格-客厅3.jpg

客厅背景墙设计为原木色纯实木博古架,中间位置壁挂电视,四周隔断放置饰品,提升环境氛围。木材的柔和使得居住者亲近自然,同时将北欧的设计理念展现出来。沙发背景墙采用简约设计,墙面附上立体装饰画,与简洁舒适的沙发相结合,自由舒适,不失稳重。

富海澜湾半岛-98平-北欧风格-餐厅.jpg

餐厅空间位置较小,延续原有的墙面设计博古架,利用隔板,放置书籍抑或饰品,合理利用空间,使每个独立空间更加整体协调。

富海澜湾半岛-98平-北欧风格-卧室.jpg

床头墙面采用竖条纹壁纸,在视觉上提升空间的高度,深色的木制地板,稳重大气,纯色的窗帘,让人彻底放松心灵,彰显主人的喜好。

富海澜湾半岛-98平-北欧风格-卫生间.jpg

卫生间以黄色砖为主,在淋浴区采用马克砖做背景,让卫生间更加有趣味性。

富海澜湾半岛-98平-北欧风格-厨房.jpg

根据厨房尺寸,橱柜采用L形设计,大理石台面,单色的橱柜门,简洁的地砖及顶棚,色彩纯净,显得空间宽敞。

富海澜湾半岛-98平-北欧风格-门厅1.jpg 富海澜湾半岛-98平-北欧风格-门厅2.jpg

利用原有的墙体的凹面,设计玄关柜,来满足储物功能,白色收口线与顶棚石膏线相呼应。

富海澜湾半岛-98平-北欧风格-布局图.jpg

案例设计师

林凤装饰设计师

设计师:林凤装饰设计师

从业时间:8年

设计理念:设计源于生活,细节成就品质

预约设计师

算算你家装修多少钱

报名即享丰厚赠品,享半价装修

免费报价
咨询热线:400-656-9909
20190221103704574636.jpg

精品设计案例

20180612134930523248.jpg 服务号二维码.jpg