 
        
     立即预约
        立即预约
     
            免费定制整装家居
一站置家 全程无忧 一省到底 
        设计理念:楼上为欧式风格元素以采用爵士白的罗马柱和大理石及白色的护墙板为主色基调配以蒂芙尼蓝的家具与窗帘作为点缀营造出一种欧式典雅的空间氛围。楼下则采用中式的设计手法配以水系景观及绿植形成一种独特的室内氛围。
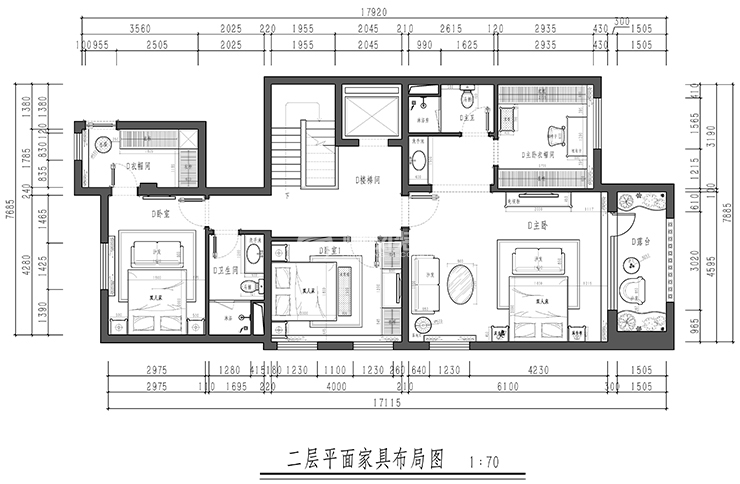
案例详情
 
                                                                            客厅顶面采用石膏花线作为顶面装饰与地面的石材拼花相对应,电视背景墙为一块深灰色的天然石材为整体客厅空间加上一丝沉稳与硬朗。
 
                                                                            餐厅顶面与客厅的设计手法一致采用石膏花线作为顶面装饰与地面的石材拼花相对应,中间配以欧式古典餐桌形成三点一线使空间的画面感更强。
 
                                                                             
                                                                            主卧室的墙面为大面积白色护墙板床头背景墙配以米黄色软包装饰,顶面柔和的灯光和地面原木色人字拼的实木地板为空间营造出一种舒适 典雅 安静的氛围。
 
                                                                            卫生间采用的是干湿分离的设计方式,方便卫生间后期的打理。 考虑到卫生间地面湿滑的特性所以在淋浴房内的地面上做了防滑式设计在考虑到功能的同时也大大的增加的安全性。
 
                                                                            厨房为定制的U形橱柜可以最大化的利用可操作空间,墙面采用暖色系的墙砖与地面的大理石颜色相呼应,使空间干净整洁大气。
 
                                                                            老人房
 
                                                                             
                                                                             
                                                                             
                                                                             
                                                                精品设计案例
 
            设计说明:
                        
 三室两厅一厨两卫,高层整体采用美式风格,色调以深色为主,体现美式的居家感和温馨感。                    
 
             
            设计说明:
                        
 本案业主为年轻时尚小两口,所以我们考虑到未来想要给未来宝宝一个温馨舒适的一个房间,所以本案整体采用现代风格的手法,运用颜色,来打造整体空间的设计感及时尚感                    
 
             
            设计说明:
                        
 本案以北欧风格为主题的设计,北欧风格能以现代、简洁、自然的特点俘获人心,所营造出来的生活氛围会让人倍感舒适与自在。                    
 
             
            设计说明:
                        
 客户是一名成功人士,对于家的执念就是简单干净,客户衣服比较多,所以把每个空间都做了大衣柜,并且融入到设计里                    
