 
        
     立即预约
        立即预约
     
            免费定制整装家居
一站置家 全程无忧 一省到底 
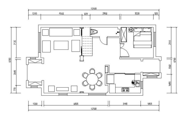
        设计理念:本案的装修风格属于中式风格,中式风并非完全意义上的复古明清,而是通过中式风格的特征,表达清雅含蓄,端庄风华的东方式精神界的追求。中国风的构成主要体现在传统家具装饰品及黑、红为主的装饰色彩上。室内多采用对称式的布局方式,格调高雅,造型优美,色彩浓厚而成熟。
案例详情
 
                                                                             
                                                                             
                                                                            客厅风格的古色古香与简单朴素自然衔接,使生活的实用性和对传统文化的追求同时得到了满足。背景墙的造型简洁现代,却在醒目的位置饰以中式书画,这种绝妙的组合给人强烈的视觉意志力。
 
                                                                            餐厅是饮食的地方,在餐桌旁做两个餐边柜,放上些装饰品,让整个空间看起来更加具有中式气息。灯光从客厅延续过来,让客厅和餐厅看起来更加的协调。
 
                                                                             
                                                                            卧室是生活中休息的地方。在床的旁边挂上一副装饰画,给人一种宁静的感觉,让人更加舒适的休息区域。家具的配色一致,让整个空间看起来协调美观。
 
                                                                            卫生间墙砖、地砖上整体和谐统一,应客户需求都选择了暖色系的瓷砖,给人感觉更舒适,温馨些。
 
                                                                            厨房的L型橱柜选用了极具中式特色的木质材料。在色彩方面的搭配与创意,让整个空间感得到很大的提升。L形的橱柜还可以让主人在烹饪的时候有更大的空间,让人更加的方便。
 
                                                                             
                                                                            业主喜欢在闲暇的时候读写书,在书柜旁边放上一个休息的床榻,累了可以在床榻上休息。书房里面还放有一个书桌,可以写书法、喝茶,在后墙放上一副挂画,让整个空间更加充满了中式的气息。
 
                                                                             
                                                                精品设计案例
 
            设计说明:
                        
 三室两厅一厨两卫,高层整体采用美式风格,色调以深色为主,体现美式的居家感和温馨感。                    
 
             
            设计说明:
                        
 本案业主为年轻时尚小两口,所以我们考虑到未来想要给未来宝宝一个温馨舒适的一个房间,所以本案整体采用现代风格的手法,运用颜色,来打造整体空间的设计感及时尚感                    
 
             
            设计说明:
                        
 本案以北欧风格为主题的设计,北欧风格能以现代、简洁、自然的特点俘获人心,所营造出来的生活氛围会让人倍感舒适与自在。                    
 
             
            设计说明:
                        
 客户是一名成功人士,对于家的执念就是简单干净,客户衣服比较多,所以把每个空间都做了大衣柜,并且融入到设计里                    
