 
        
     立即预约
        立即预约
     
            免费定制整装家居
一站置家 全程无忧 一省到底 
        设计理念:本方案整体设计为法式风格,通过华丽,浪漫的家具及配饰,来彰显出空间的奢华感与贵族气息。无论家具还是墙面造型,搭配以金属条和对称设计,来提升整体的视觉的美感。通过线条和造型来体现法式风格的优柔华贵气质。
案例详情
 
                                                                             
                                                                             
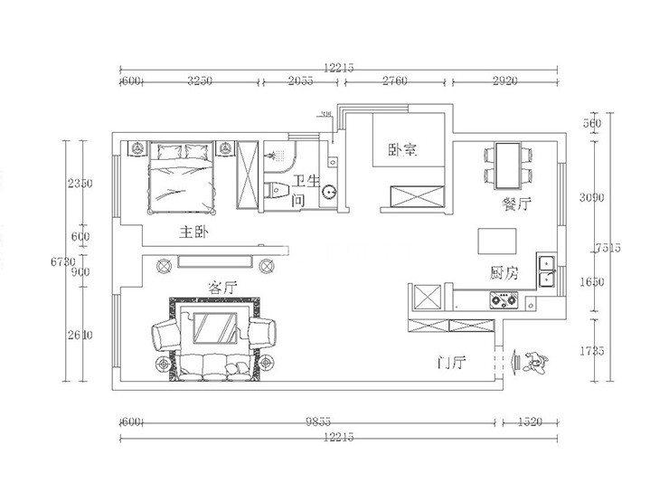
                                                                            客厅的墙面是白色的乳胶漆,因为是法式风格,所以无论是墙面还是顶棚都有石膏线条造型,附以金色的金属条,来凸显风格与空间感。沙发与电视柜等采用撞色设计, 色彩对比鲜明,并且家具大多有配饰金属条,更能增加视觉感受。
 
                                                                            餐厅的起始功能分区是客卧,由于户型的原因以及后期业主可能自己住,所以将之改为餐厅,使得厨房和餐厅更宽敞,有个独立的餐厅区域,还有一面墙体做了造型,使得独立的餐厅又与房屋整体风格相呼应。
 
                                                                             
                                                                            卧室墙面采用暖色墙壁纸,床的背景墙同样石膏线条造型,家具及配饰等多浅色为主。虽然整体为法式风格,但卧室的床头亦或背景墙并没有采用比较纯欧式的雕花造型等。这样看起来既不是华丽的感觉又不至于复杂繁琐。
 
                                                                            卫生间整体采用灰咖色调瓷砖,定制整面墙的洗手台以及墙壁镜。由于空间有限无法设计成干湿分离,但正常使用空间还是够用的。烟道部分影响美观,所以在正面用理石或其他材料定制成开放格。既起到装饰又有一定的储放功能。
 
                                                                            厨房是开敞式厨房,餐厅与厨房相连,中间设计了一个导台,空间相较于封闭式厨房与餐厅,空间显得宽敞大气,也能匹配法式风格。橱柜的颜色以及造型与客厅统一,柜体上同样镶嵌金属条。
 
                                                                            门厅区域地面地砖拼花,将门厅与客厅分离开来,鞋柜满做,上部并没有做吊柜,这样不至于太影响视觉感官和显得门厅狭小,穿衣镜设计在对面墙面,既节省空间又利于着装。
 
                                                                             
                                                                精品设计案例
 
            设计说明:
                        
 三室两厅一厨两卫,高层整体采用美式风格,色调以深色为主,体现美式的居家感和温馨感。                    
 
             
            设计说明:
                        
 本案业主为年轻时尚小两口,所以我们考虑到未来想要给未来宝宝一个温馨舒适的一个房间,所以本案整体采用现代风格的手法,运用颜色,来打造整体空间的设计感及时尚感                    
 
             
            设计说明:
                        
 本案以北欧风格为主题的设计,北欧风格能以现代、简洁、自然的特点俘获人心,所营造出来的生活氛围会让人倍感舒适与自在。                    
 
             
            设计说明:
                        
 客户是一名成功人士,对于家的执念就是简单干净,客户衣服比较多,所以把每个空间都做了大衣柜,并且融入到设计里                    
