 
        
     立即预约
        立即预约
     
            免费定制整装家居
一站置家 全程无忧 一省到底 
        设计理念:本案是以法式风格为主的设计。设计师主要以法式元素的理解再加上对房型的理解相结合,整改了很多对于土建方面的缺陷。对于主体主要包括法式巴洛克风格(路易十四风格)洛可可风格(路易十五风格)新古典•风格(路易十六风格)帝政风格等,是欧洲家具和建筑文化的顶峰。
案例详情
 
                                                                             
                                                                             
                                                                             
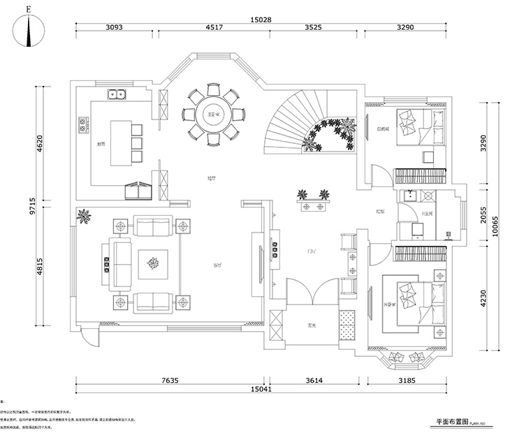
                                                                            这是一张透漏着古典、客厅的开间超过了9米之远,对于整体设计把客厅一分为二,让整个客厅彰显出风格特点。欧式之美的法式风格客厅装修效果图。首先是色彩的选择方面,其选择了中性灰作为空间的主色调,除了中性灰之外,又用粉色来点缀空间。中性灰给人的感觉是平衡的和谐的,粉丝虽然是比较鲜艳的颜色,但是在这间客厅中,设计师降低了粉色的纯度,增加了其亮度,从而让粉色给人带给人浪漫、婉约的感觉。
 
                                                                             
                                                                            与自己的生活习惯、个人爱好相吻合。餐厅设计的关键在餐桌的选择上,所以餐厅桌椅的选择也是非常重要的,长条桌是对于整个餐厅的一个非常好的选择,一方面要与房屋的整个设计风格相一致,另一方面也的要考虑自己的喜好,款式要是自己喜欢的,这样才会积极影响整个餐厅的氛围,使家人开心快乐。整体餐厅的吊棚是整个餐厅的关键,复杂的造型及石膏雕花与客厅造型相结合,所以,在选择色彩时,切忌颜色过多,可以多用中性色,如沙色、石色、浅黄色、灰色、棕色,这些色彩能给人宁静的感觉。
 
                                                                            法式卧室具有开放式的美,有时候还会刻意的去呈现一种突出,这样也是为了体现主人的一个悠然自得的生活态度。法式风格卧室的装修也是需要一定的技巧的,一般床上的用品会以白色作为主色调,窗帘的话,在选择的时候也多选择近似的一个色调,这样主要是为了凸显房间的大气,整体设计出来的形象也是非常协调的,我们在装修的时候,注意尽量不要出现深色调的家具哦,不然会显得有些突兀。
 
                                                                             
                                                                             
                                                                            特别设计的水吧干净整洁,陈列的杯具与酒品静候着主人的挑选,生活在其间,繁忙时可以制作一份美味的简餐,闲暇时也可充作吧台享受一支心仪的红酒,让生活的每一刻都成为一种对于生命的享受。
 
                                                                             
                                                                             
                                                                             
                                                                             
                                                                             
                                                                             
                                                                             
                                                                精品设计案例
 
            设计说明:
                        
 三室两厅一厨两卫,高层整体采用美式风格,色调以深色为主,体现美式的居家感和温馨感。                    
 
             
            设计说明:
                        
 本案业主为年轻时尚小两口,所以我们考虑到未来想要给未来宝宝一个温馨舒适的一个房间,所以本案整体采用现代风格的手法,运用颜色,来打造整体空间的设计感及时尚感                    
 
             
            设计说明:
                        
 本案以北欧风格为主题的设计,北欧风格能以现代、简洁、自然的特点俘获人心,所营造出来的生活氛围会让人倍感舒适与自在。                    
 
             
            设计说明:
                        
 客户是一名成功人士,对于家的执念就是简单干净,客户衣服比较多,所以把每个空间都做了大衣柜,并且融入到设计里                    
