立即预约
免费定制整装家居
一站置家 全程无忧 一省到底
设计说明:
现代轻奢风格以简洁流畅的线条为基础,融合精致材质与高级色调,通过巧妙的细节设计与灯光运用,打造兼具时尚感与品质感的居住空间。本案以黑白灰为主色调,搭配金属、大理石等元素,为沈阳府小区业主营造出优雅大气、低调奢华的生活氛围。
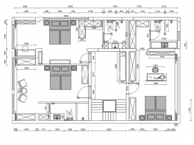
设计说明:
本案建筑面积85平米,根据业主需求设计了法式风格,整体以线条感为主,大量的石膏线和uv线条,突出质感和档次。富丽堂皇的装修风格,给人高端大气。
设计说明:
本设计采用软装配合,简单的线条,简单的组合,再加入简单的元素;发挥结构构成本身的形式美,造型简洁,运用合理的构成工艺,构成一个舒适简单的空间。
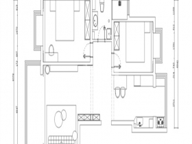
设计说明:
客户是老两口退休后的房子,准备重新翻新,本案对厨房和卫生间的布局方面进行了重新的调整,增加了老人淋浴的空间以及厨房收纳以及台面的面积,搭配暖色调的颜色搭配,布局大方,简单温馨
设计说明:
本案的主要设计核心是以生活文本,回归改善的生活品质又不失华丽,颜色以暖色调为主,更加温馨,整个房间让人感觉温暖舒适,很想让人有归家感。
设计说明:
设计师整体设计理念: 运用柔和色彩和原木风家具,打造舒适悠闲氛围。
设计说明:
设计师整体设计理念: 因生活而设计,因设计而完美。
设计说明:
本套 87 平的现代风格住宅,整体以灰色调为主,营造出一种高雅、宁静的氛围。现代风格强调功能的实用性。空间布局依据居住者的生活习惯和实际需求进行规划,减少空间浪费。例如在客厅设计中,沙发、茶几和电视的摆放位置充分考虑人的活动线路,确保使用起来方便舒适。