立即预约
免费定制整装家居
一站置家 全程无忧 一省到底
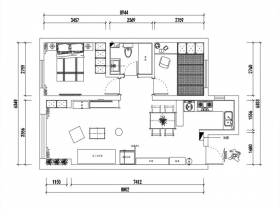
设计说明:
本案以简洁明快的设计风格 打造了一个对比强烈,质感鲜明的现代居住空间,主要以墨绿色为主色调,在地面,厨房等位置大量使用,优雅且时尚。吊顶的设计更是以简单且有创意的造型处理,既满足了功能使用,又不失简洁大气。增添了空间的层次感,更使灯光多元化。
设计说明:
现代混搭,偏侘寂风,改善型住房 ,所以对空间的改造更加重视 根据户型特点 加以优化 让室内的空间通透感更加强烈 通风采光更加优秀 设计方向别具一格 大气块面画的符号体现
设计说明:
本案以简洁明快的设计风格 打造了一个对比强烈,质感鲜明的现代居住空间,主要以墨绿色为主色调,在地面,厨房等位置大量使用,优雅且时尚。吊顶的设计更是以简单且有创意的造型处理,区别于普通常见的边棚造型,既满足了功能使用,又不失简洁大气。增添了空间的层次感,更使灯光多元化。
设计说明:
设计是解决问题的答案,而不是一种视觉形式!本案风格定义为混搭风,混搭风格是一种打破传统、独具个性的设计理念,糅合了东西方独特的美学元素,并以独创性和想象力将其完美融合。接下来我们就来了解一下混搭风格设计理念吧。
设计说明:
本案业主为年轻时尚小两口,所以我们考虑到未来想要给未来宝宝一个温馨舒适的一个房间,所以本案整体采用现代风格的手法,运用颜色,来打造整体空间的设计感及时尚感
设计说明:
本案业主为50多岁夫妇,所以我们经过交流沟通业主很适合深色富有内涵的实木系列,由于共6层,每层运用不同地域的文化风格但整体采用一种色度来贯穿所有风格保持整体一致.所以本案整体采用欧美结合泰式以及地下室新中的混搭设计手法,表现空间的多元化,业主也非常喜欢。
设计说明:
有别于传统棋牌室,本案敢于创新,力求给使用者带来比较不一样的体验
设计说明:
全心全意做设计,踏踏实实做装修。